⚠️ This forum has been restored as a read-only archive so the knowledge shared by the community over many years remains available. New registrations and posting are disabled.

All times are UTC + 8 hours




Post new topic Reply to topic  [ 111 posts ]  Go to page Previous  1, 2, 3, 4, 5, 6 ... 8  Next
Author Message
 Post subject: Re: IBC Do It Yourself
PostPosted: Jun 2nd, '10, 11:23 
Legend Member
Legend Member
User avatar

Joined: Jul 2nd, '08, 11:22
Posts: 552
Location: Mount Crosby (Brisbane) QLD
Gender: Male
Are you human?: mostly
Location: Mount Crosby QLD
Privatteer,
Quote:
B had some 12vdc 11watt 5 LED plastic body waterproof lights last time I looked. Brought 1 and its survived 6months so far.

Went and got the refund at B, then bought the little plastic LED one.
Attachment:
kings pics 002.jpg
kings pics 002.jpg [ 199.16 KiB | Viewed 8190 times ]
Used my existing transformer and wired it up.
Hope it lasts OK.

Also purchased the Castors for the IBC project, 2 x 65kg ones (black tyres) for the end and 2 x 120kg (white nylon) for the "centre" ones. 120kg @ $17 each, 65kg @ $7.50 each. Had to change the drawings because the Castors have 75mm wheels with a total height of 100mm. Couldn't source any with 50mm diameter wheels that could take the load required.
Have amended the drawn sections to depict Castor changes but won't post just at the moment, there may be more changes to come. I'll finally produce them as "Work-As-Executed" drawings after it all works. Will continue to post pics of progress and construction.

Cheers IanK :mrgreen:


Top
 Profile  
Reply with quote  
    Advertisement
 
 Post subject: Re: IBC Do It Yourself
PostPosted: Jun 7th, '10, 10:07 
Legend Member
Legend Member
User avatar

Joined: Jul 2nd, '08, 11:22
Posts: 552
Location: Mount Crosby (Brisbane) QLD
Gender: Male
Are you human?: mostly
Location: Mount Crosby QLD
W/E Update.
Very time consuming this AP lark, by the time I fed the Gold Fish, watched them to make sure they are comfortable, testing the water, cleaning plant life in the GBs and generally futzing around admiring handiwork etc, by the time I got to do some actual fabrication work it was well after Lunch on Sunday!!
So, here's the progress:
Started to put the timber packing to the cut sections of the IBC framing. I did a little bit of a weld job on the damaged frame upright to the GB section and belted it straight with the Hammer.
Attachment:
kings pics 001.jpg
kings pics 001.jpg [ 197.85 KiB | Viewed 8136 times ]

Attachment:
kings pics 002.jpg
kings pics 002.jpg [ 241.5 KiB | Viewed 8133 times ]

Finally got all the trims on. Doesn't have to be that accurate because it will all be covered up, so it is a bit rough. Even had to scrounge a bit of old HW decking from Her In The Garden's Stock of old bits and pieces.
Next: the Cladding


Attachments:
kings pics 003.jpg
kings pics 003.jpg [ 288.39 KiB | Viewed 8134 times ]
Top
 Profile  
Reply with quote  
 Post subject: Re: IBC Do It Yourself
PostPosted: Jun 7th, '10, 10:14 
Legend Member
Legend Member
User avatar

Joined: Jul 2nd, '08, 11:22
Posts: 552
Location: Mount Crosby (Brisbane) QLD
Gender: Male
Are you human?: mostly
Location: Mount Crosby QLD
The IBC Cladding/Insulation is 75mm thich EPS (expanded poly styrene) core panel, clad with plain faced, Colorbond sheet metal. Sold as 'SolarSpan' or similar by Patio builders in Aus, it is the same product as the old Bondor 'Equibond' Coolroom panel, just a new name and use. You can get it in 50mm, 75mm and 100mm thicknesses, I was just lucky enough to pick some up very cheaply from left-overs from a project.
Attachment:
kings pics 004.jpg
kings pics 004.jpg [ 272.91 KiB | Viewed 8149 times ]

Mark and cut both sides with small angle grinder, then cut EPS core with a Hacksaw blade. Not too messy but quick and easy to do.
Attachment:
kings pics 006.jpg
kings pics 006.jpg [ 180.64 KiB | Viewed 8148 times ]

In place ready for folded flashings and trims. Will get those by next w/e (I hope) and will pop rivet them to EPS panels.

I think it's starting to look good already! But, then again, I'm biased!

Cheers IanK.


Attachments:
kings pics 007.jpg
kings pics 007.jpg [ 169.72 KiB | Viewed 8144 times ]
Top
 Profile  
Reply with quote  
 Post subject: Re: IBC Do It Yourself
PostPosted: Jun 7th, '10, 10:42 
Site Admin
Site Admin
User avatar

Joined: Mar 12th, '06, 07:56
Posts: 17803
Images: 4
Location: Perth
Gender: Male
Blog: View Blog (1)
Thanks for the step by stop pics and instructions Ian. Can I ask what the castors run on, is it the wood or the metal edge... (Or are we just not up to that bit yet :oops: )


Top
 Profile Personal album  
Reply with quote  
 Post subject: Re: IBC Do It Yourself
PostPosted: Jun 7th, '10, 11:25 
Legend Member
Legend Member
User avatar

Joined: Jul 2nd, '08, 11:22
Posts: 552
Location: Mount Crosby (Brisbane) QLD
Gender: Male
Are you human?: mostly
Location: Mount Crosby QLD
earthbound wrote:
Thanks for the step by stop pics and instructions Ian. Can I ask what the castors run on, is it the wood or the metal edge... (Or are we just not up to that bit yet :oops: )

Hi Joel,

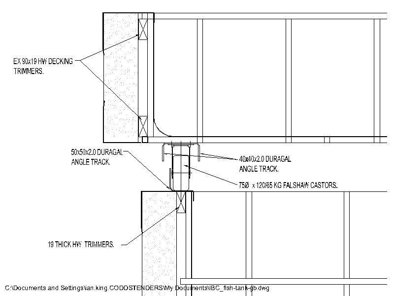
The castors will run on a 50x50x2.0 Duragal angle track with the outside leg turned up (each side of the FT) to give a guide so that the GB doesn't become derailed.
This track will be directly supported by the IBC Fish Tank vertical framing as well as the Timber trims, the EPS panel and the Flashings on the Fish Tank top. This means that the Track is fully supprted for it's working length and should not deflect under the load of the GB. If the GB wasn't rotated over the FT by 90 degrees, the extra support channel (as below) wouldn't have been required. But to allow some access to the FT without moving the GB, it was necessary to rotate it in plan.
I chose a heavier duty (125Kg) castor/s for the near-centre, as it (they) would be taking about 4/5ths of the total load, with 65 Kg ones for the outer edge. They were a bit cheaper than the white nylon 125 Kg ones.
Attachment:
castor track.jpg
castor track.jpg [ 46.36 KiB | Viewed 8131 times ]
I estimate the GB to have a mass of about 310kg when full of water and media.(We will see how close I get!!)
The Castor frame mounts will be attached to 2off: 40x40x2.0 Duragal angles, leg to leg, used as a 'Channel' to span the framing on each side of the bottom of the GB. These will also act as direct support for the base of the loaded Grow bed liner. That's why I used 2 instead of a single piece, the down legs provide the vertical strength to overcome the mass of the GB.

I will fit them next W/E (hopefully) if the Flashings arrive from Stratco.
More pics then ,

Cheers IanK


Top
 Profile  
Reply with quote  
 Post subject: Re: IBC Do It Yourself
PostPosted: Jun 9th, '10, 10:37 
Legend Member
Legend Member
User avatar

Joined: Jul 2nd, '08, 11:22
Posts: 552
Location: Mount Crosby (Brisbane) QLD
Gender: Male
Are you human?: mostly
Location: Mount Crosby QLD
Hi All,
Updated PDFs (as a ZIP file) of fabrication drawings for IBC refurbishment. Depicts latest information and changes required for available materials etc.
PDF sare produced for B1 sized paper, so good details are available for computer viewing.

Cheers IanK


Attachments:
IBC PLANS.zip [550.74 KiB]
Downloaded 535 times
Top
 Profile  
Reply with quote  
 Post subject: Re: IBC Do It Yourself
PostPosted: Jun 9th, '10, 11:12 
Newbie
Newbie

Joined: Jun 1st, '10, 09:45
Posts: 38
Gender: Male
Are you human?: yes
Location: Norlane, Victoria
This looks good...

Although what are the costs you are looking at here for this so far?


Top
 Profile  
Reply with quote  
 Post subject: Re: IBC Do It Yourself
PostPosted: Jun 9th, '10, 12:11 
Legend Member
Legend Member
User avatar

Joined: Jul 2nd, '08, 11:22
Posts: 552
Location: Mount Crosby (Brisbane) QLD
Gender: Male
Are you human?: mostly
Location: Mount Crosby QLD
Vic,
Quote:
Although what are the costs you are looking at here for this so far?


I got a lot of 'stuff' for nothing, so you will have to put a cost against those items as you can, but here is the rest;

IBC Free (Kindly donated by fellow APer; GD!) New $340 from People in Plastics, 2nd hand about $120
75mm EPS panel $100 and a carton! for 2 x 3m lengths. New: allow $80/m at 1200 wide
40x40x2 Duragal angle about $120 (had some left over from Handrail project) about 9 m
Timber Packing Ripped 90x19HW decking left over from Building extensions : about 12 lin m. New; $4.50/m
Castors 65kg $7.80 each x2 120kg $16.50 each x2
Colorbond Flashings $210 from Stratco; overnight! (allow about $8 to $10 per metre for 150 to 220 wide stock + 3 folds each.)
Pipe work 25mm uPVC on hand with elbows and valves, left over from other projects, or buying the wrong thing in the first place!!
25mm Blue Stipe Poly, left over from water supply to house with a few fittings.
Venturi 16" 'Power Stream'" from Murray Hallam $17, 12V Bilge pump $30, Relays. battery and charger extra.
Fittings 25mm Bulkhead $9, screws etc on hand,

So, all in all, it has cost me about $300 in direct purchases for the project. Costs to start from scratch would be about $800-$1000 for the complete system build without battery back-up and pumps etc.
The EPS panel and the flashings are the greatest cost, so I would substitute something else, say 4mm Fibre Cement glued to 25 to 50mm EPS sheeting for example. You can then use inexpensive Plastic corner moulds and edge beads for the FC and paint instead of Colorbond stuff. Or use stained or clear coated ply or timber for the cladding.
It just takes a bit of time and planning to get it right.
The basic idea of having a self contained unit that can be moved easily, looked half decent and made from a standard IBC was my aim. I think the design achieves those aims. It will now have to show whether it can actually support Fish and Plants.

Cheers IanK


Top
 Profile  
Reply with quote  
 Post subject: Re: IBC Do It Yourself
PostPosted: Jun 16th, '10, 09:45 
Legend Member
Legend Member
User avatar

Joined: Jul 2nd, '08, 11:22
Posts: 552
Location: Mount Crosby (Brisbane) QLD
Gender: Male
Are you human?: mostly
Location: Mount Crosby QLD
Weekend update,
Attachment:
kings pics 001.jpg
kings pics 001.jpg [ 129.83 KiB | Viewed 8027 times ]

Started by fixing hole in IBC Grow Bed. Previous owner had cut-out to suit water capture, but he kept the bit he cut out! Easy to repair. Couple of aluminium flats as flanges and "sealed" pop rivets with a bit of silicon later.
Attachment:
kings pics 002.jpg
kings pics 002.jpg [ 170.25 KiB | Viewed 8026 times ]

Sealed pop rivets.
Attachment:
kings pics 003.jpg
kings pics 003.jpg [ 119.75 KiB | Viewed 8027 times ]


Continued . . . .


Top
 Profile  
Reply with quote  
 Post subject: Re: IBC Do It Yourself
PostPosted: Jun 16th, '10, 09:50 
Legend Member
Legend Member
User avatar

Joined: Jul 2nd, '08, 11:22
Posts: 552
Location: Mount Crosby (Brisbane) QLD
Gender: Male
Are you human?: mostly
Location: Mount Crosby QLD
Finished patch in Grow Bed Liner.
Attachment:
kings pics 007.jpg
kings pics 007.jpg [ 99.15 KiB | Viewed 8034 times ]


Grow bed flashings in place, castors and support angles fixed in place. Time taken to accurately space tracks for ease of rolling etc.
Attachment:
kings pics 009.jpg
kings pics 009.jpg [ 152.58 KiB | Viewed 8036 times ]

Attachment:
kings pics 010.jpg
kings pics 010.jpg [ 126.54 KiB | Viewed 8031 times ]


Continued . . . .


Top
 Profile  
Reply with quote  
 Post subject: Re: IBC Do It Yourself
PostPosted: Jun 16th, '10, 09:56 
Legend Member
Legend Member
User avatar

Joined: Jul 2nd, '08, 11:22
Posts: 552
Location: Mount Crosby (Brisbane) QLD
Gender: Male
Are you human?: mostly
Location: Mount Crosby QLD
Grow Bed all flashed, fixed out and ready for corner foam sealing later.
Attachment:
kings pics 011.jpg
kings pics 011.jpg [ 245.95 KiB | Viewed 8047 times ]

Top View:
Attachment:
kings pics 012.jpg
kings pics 012.jpg [ 176.27 KiB | Viewed 8043 times ]

Then started on cladding and flashing Fish tank. First item was cut out for IBC drain Valve access.
Cutting Solarspan is relatively easy if you are accurate in measuring and Angle grinder cutting on each side of the panel. Hacksaw blade canb then split the EPS core without any great mess. Some Builders just rip through with a power saw, but I find it leaves too much mess, burrs the Colorbond sheeting making it hard to get an even safe edge to work with and destroys the Colorbond coating for future protection!.
Attachment:
kings pics 014.jpg
kings pics 014.jpg [ 134.94 KiB | Viewed 8039 times ]


Continued . . . . .


Top
 Profile  
Reply with quote  
 Post subject: Re: IBC Do It Yourself
PostPosted: Jun 16th, '10, 10:05 
Legend Member
Legend Member
User avatar

Joined: Jul 2nd, '08, 11:22
Posts: 552
Location: Mount Crosby (Brisbane) QLD
Gender: Male
Are you human?: mostly
Location: Mount Crosby QLD
Cladding applied to Fish Tank from inside using Pan head screws through the timber fixing trims. Extra packing pieces can be used to even out any lumps or bumps in the IBC steel framing.
Attachment:
File comment: Her in the Garden was good enough to snap a pic of my Japanese work boots and other OH&S gear on site!!
kings pics 016.jpg
kings pics 016.jpg [ 269.43 KiB | Viewed 8040 times ]

Fish tank liner back in place ready to be Flashed over at the top.
Attachment:
kings pics 017.jpg
kings pics 017.jpg [ 150.17 KiB | Viewed 8038 times ]

Takes a while to clad and finish all the Flashings etc. So, just about finished in the dark . . . .
Attachment:
kings pics 018.jpg
kings pics 018.jpg [ 108.43 KiB | Viewed 8033 times ]


Next time . . fitting and fixing angle Castor tracks, shelf and trial assembly to Fish tank. Then Pipe work and fittings.
I hope that you are getting something out of this, cause I am!

Cheers IanK.


Top
 Profile  
Reply with quote  
 Post subject: Re: IBC Do It Yourself
PostPosted: Jun 16th, '10, 10:36 
Xtreme Contributor
Xtreme Contributor

Joined: May 17th, '09, 14:12
Posts: 148
Location: Perth Hills
Gender: Male
Location: Perth W.A.
Looking good Ian. :D :cheers:


Top
 Profile  
Reply with quote  
 Post subject: Re: IBC Do It Yourself
PostPosted: Jun 16th, '10, 11:21 
Site Admin
Site Admin
User avatar

Joined: Mar 12th, '06, 07:56
Posts: 17803
Images: 4
Location: Perth
Gender: Male
Blog: View Blog (1)
Excellent stuff Ian.... :headbang:

Is there enough support in the top section with only the two cross members? Though I see you could probably put a thin packer under your castor mounting if required. Hows your other system ?


Top
 Profile Personal album  
Reply with quote  
 Post subject: Re: IBC Do It Yourself
PostPosted: Jun 16th, '10, 11:32 
Xtreme Contributor
Xtreme Contributor
User avatar

Joined: May 15th, '10, 12:22
Posts: 202
Location: Croydon
Gender: Female
Are you human?: yes
Location: Victoria Australia
Fantastic Ian,
I have just ordered 4 IBCs to begin my set up. It is good to see how they are constructed up close and how they are deconstructed also.
Plenty of food for thought. Look forward to your next installment.

Dale

ps the welding you did was because the IBC was damaged yes?
I don't know about welding.


Top
 Profile  
Reply with quote  
Display posts from previous:  Sort by  
Post new topic Reply to topic  [ 111 posts ]  Go to page Previous  1, 2, 3, 4, 5, 6 ... 8  Next

All times are UTC + 8 hours


You cannot post new topics in this forum
You cannot reply to topics in this forum
You cannot edit your posts in this forum
You cannot delete your posts in this forum
You cannot post attachments in this forum

Search for:
Jump to:  
cron

Powered by phpBB® Forum Software © phpBB Group
Portal by phpBB3 Portal © phpBB Türkiye
[ Time : 0.078s | 15 Queries | GZIP : Off ]