Duff
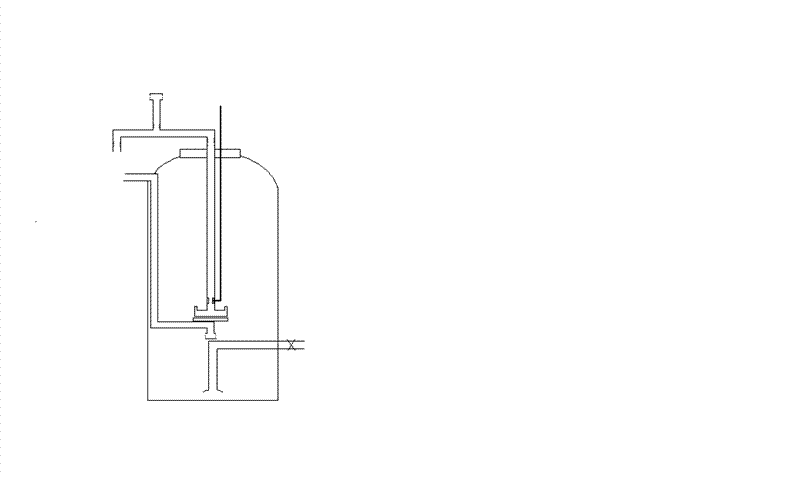
This is a schematic of my design for a biofilter. It should be able to handle a reasonable flow. I will be using bottle caps in it but polypropelene or polyethelene beads would work better (they have to have slight positive bouyancy).
It works like this, water is pumped in the top pipe down to eight nozzles pointing up (you can get one of these from an old diamateous earth swimming pool filter I can post a pic if you want

. The water rises rapidly up the centre of the barrel carrying the media then down the outsides to the exit pipe (under the nozzles) this causes a torodial motion in the barrell with the outside moving slower (because its a longer distance). Crap will then fall to the bottom. The advantage is you have a biofilter and sort of vortex action all in one barrell.
I pinched this design from a patent of a device mainly for processing sewage (should handle large volume of biofiltration if using beads)