⚠️ This forum has been restored as a read-only archive so the knowledge shared by the community over many years remains available. New registrations and posting are disabled.

All times are UTC + 8 hours




Post new topic Reply to topic  [ 89 posts ]  Go to page 1, 2, 3, 4, 5, 6  Next
Author Message
 Post subject: Shaker System
PostPosted: Aug 3rd, '10, 15:47 
Bordering on Legend
Bordering on Legend

Joined: Jul 16th, '10, 21:13
Posts: 340
Location: Ellenbrook WA
Gender: Male
Are you human?: After Beer
Location: Ellenbrook WA
Hi

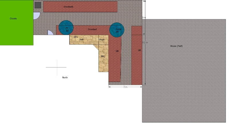
I will restart here. Thanks for the comments on previous thread. I have amended my drawing but it is still crap.
Attachment:
My Eventual Complete CHOP web.jpg
My Eventual Complete CHOP web.jpg [ 168.64 KiB | Viewed 2104 times ]


Top
 Profile  
Reply with quote  
    Advertisement
 
 Post subject: Re: Shaker System
PostPosted: Aug 3rd, '10, 16:23 
Bordering on Legend
Bordering on Legend

Joined: Jul 16th, '10, 21:13
Posts: 340
Location: Ellenbrook WA
Gender: Male
Are you human?: After Beer
Location: Ellenbrook WA
Ok

I have a couple of site pics. First is view along back of house and the second is view to the upcoming chook shed.

I have the following installation notes

1. FT and Sump will be approximately 3000 litres each. They will be of brick/liner construction with dimensions of 2m l x 1m w x 1.5m d.
2. Growbeds will be of timber construction/liner raised, filled with stone and expanded clay.
3. I have a BIO Filter capable of handling around 1.5 kl/ph. So i will install that before Growbed manifold in parrallel with main feed from FT.
4. The growbeds will use Bell Syphons where needed.
5. The sump will contain the 4.5kl/ph pump which i have left over from a previous pond..

This system will be preceded by a small Blue Barrel Setup to get veggies up and going while i begin the build as money allows.

I will upload diagrams of flow etc when i am more confidend in these drawing apps.

Questions

Will 50 mm pipe be sufficient?
Can this system use an auto syphon setup like gary's Mega Bin?

I will post piccies of the pump and bio box soon

Mark


Attachments:
File comment: View to chook shed
IMG_0173.JPG
IMG_0173.JPG [ 153.18 KiB | Viewed 2075 times ]
File comment: view along back of house
IMG_0170.JPG
IMG_0170.JPG [ 158.95 KiB | Viewed 2074 times ]
Top
 Profile  
Reply with quote  
 Post subject: Re: Shaker System
PostPosted: Aug 3rd, '10, 18:17 
Bordering on Legend
Bordering on Legend

Joined: Jul 16th, '10, 21:13
Posts: 340
Location: Ellenbrook WA
Gender: Male
Are you human?: After Beer
Location: Ellenbrook WA
<iframe width="425" height="350" frameborder="0" scrolling="no" marginheight="0" marginwidth="0" src="http://www.nearmap.com/?ll=-31.786479,115.977762&amp;z=22&amp;t=h&amp;nmd=20100529&amp;output=embed"></iframe><br /><small><a href="http://www.nearmap.com/?ll=-31.786479,115.977762&amp;z=22&amp;t=h&amp;nmd=20100529&amp;source=embed" style="color: #0000ff;text-align:left">View Large Map</a></small>


Top
 Profile  
Reply with quote  
 Post subject: Re: Shaker System
PostPosted: Aug 3rd, '10, 18:39 
Impressive... but what's it all about... :laughing3:

Sorry... but you can't cut and paste code... unless it conforms to the limited BBCode formats allowed...


Last edited by RupertofOZ on Aug 3rd, '10, 18:41, edited 1 time in total.

Top
  
Reply with quote  
 Post subject: Re: Shaker System
PostPosted: Aug 3rd, '10, 18:40 
Bordering on Legend
Bordering on Legend

Joined: Jul 16th, '10, 21:13
Posts: 340
Location: Ellenbrook WA
Gender: Male
Are you human?: After Beer
Location: Ellenbrook WA
mmm

can someone delete the above post please. Along with this one. I was trying to post a nearmap link but failed

Ta
Mark


Top
 Profile  
Reply with quote  
 Post subject: Re: Shaker System
PostPosted: Aug 3rd, '10, 18:41 
Bordering on Legend
Bordering on Legend

Joined: Jul 16th, '10, 21:13
Posts: 340
Location: Ellenbrook WA
Gender: Male
Are you human?: After Beer
Location: Ellenbrook WA
ooh dont delete rupe's

Rupe are you refering to the code or the system :D


Top
 Profile  
Reply with quote  
 Post subject: Re: Shaker System
PostPosted: Aug 3rd, '10, 18:45 
shaker wrote:
I was trying to post a nearmap link but failed

humm, had a play around with that url Mark.... but not sure you can from that site... if it requires registration.. and/or a personal account page...


Top
  
Reply with quote  
 Post subject: Re: Shaker System
PostPosted: Aug 3rd, '10, 18:54 
Bordering on Legend
Bordering on Legend

Joined: Jul 16th, '10, 21:13
Posts: 340
Location: Ellenbrook WA
Gender: Male
Are you human?: After Beer
Location: Ellenbrook WA
ah

ta for the info

Well the intent of my system is a shadehous/greenhouse to grow whatever i can and fish/crustacians as well. I fell onto hydroponics at the beginning of June. I built myself a basic bucket system to start in spring and went about raising seedlings in little raft systems.

Basically i jumped the gun and had to move my buckets into my garage and replant the tomato and cucumbers.

Then while googling away i discover Aquaponics. I have visite BYAP twice so far for a nosey and have been smitten.

So i have blue barrels to start something small and a grandiose plan for something bigger is building. This forum is awesome and i hope to have a great system setup by the time i have the area ready to go.

Mark


Top
 Profile  
Reply with quote  
 Post subject: Re: Shaker System
PostPosted: Aug 3rd, '10, 20:01 
Bordering on Legend
Bordering on Legend

Joined: Jul 16th, '10, 21:13
Posts: 340
Location: Ellenbrook WA
Gender: Male
Are you human?: After Beer
Location: Ellenbrook WA
Oh
Just noticed a flaw in my drawing. FT needs to be above GB's so no growbeds there.

Mark :oops:


Top
 Profile  
Reply with quote  
 Post subject: Re: Shaker System
PostPosted: Aug 4th, '10, 06:53 
Bordering on Legend
Bordering on Legend
User avatar

Joined: Mar 26th, '10, 12:08
Posts: 296
Gender: Male
Are you human?: Depends on the time
Location: Blue Mtns, NSW
FT does not HAVE to be above the GB. You could use a header tank but that would mean another pump. This may be a better option considering the size of your FT and sump.


Top
 Profile  
Reply with quote  
 Post subject: Re: Shaker System
PostPosted: Aug 4th, '10, 07:38 
Bordering on Legend
Bordering on Legend

Joined: Jul 16th, '10, 21:13
Posts: 340
Location: Ellenbrook WA
Gender: Male
Are you human?: After Beer
Location: Ellenbrook WA
rmcpb wrote:
FT does not HAVE to be above the GB. You could use a header tank but that would mean another pump. This may be a better option considering the size of your FT and sump.


Yeah thanks for the suggestion. I am still mulling over the FT size. I do only need to have the FT slightly higher than GB so the overflow works. I have to rethink the biofilter setup/location though.

Mark


Top
 Profile  
Reply with quote  
 Post subject: Re: Shaker System
PostPosted: Aug 4th, '10, 08:16 
Legend Member
Legend Member
User avatar

Joined: Aug 3rd, '09, 06:50
Posts: 956
Location: Bullsbrook
Gender: Male
Are you human?: 01011001011001010111
Location: Western Australia
If you want to post a nearmap picture just zoom in to the desired image and press "print screen" on your key board (top right usually) then paste into "MS paint" and save as a jpeg then post as you would a picture. It may need resizing first.


Attachments:
untitled (Medium).JPG
untitled (Medium).JPG [ 150.02 KiB | Viewed 1940 times ]
Top
 Profile  
Reply with quote  
 Post subject: Re: Shaker System
PostPosted: Aug 4th, '10, 08:24 
Legend Member
Legend Member
User avatar

Joined: Aug 3rd, '09, 06:50
Posts: 956
Location: Bullsbrook
Gender: Male
Are you human?: 01011001011001010111
Location: Western Australia
Also by doing this you are not redirecting any one with access to the net to a website that allows them to zoom out from your backyard and find out exactly where you live. :shock:

Safety first, there are some weirdos out there (and in here too!!!!)


Top
 Profile  
Reply with quote  
 Post subject: Re: Shaker System
PostPosted: Aug 4th, '10, 08:29 
Bordering on Legend
Bordering on Legend

Joined: Jul 16th, '10, 21:13
Posts: 340
Location: Ellenbrook WA
Gender: Male
Are you human?: After Beer
Location: Ellenbrook WA
Sweet

Thanks Simo and yeah i guess if people came here they might need security :laughing3:

Mark


Top
 Profile  
Reply with quote  
 Post subject: Re: Shaker System
PostPosted: Aug 4th, '10, 08:54 
Bordering on Legend
Bordering on Legend

Joined: Jul 16th, '10, 21:13
Posts: 340
Location: Ellenbrook WA
Gender: Male
Are you human?: After Beer
Location: Ellenbrook WA
Hi

Well finally after simo's advise i have a shot of my place. Just to indicate where my drawing resides


Attachments:
My Backyard.jpg
My Backyard.jpg [ 105.97 KiB | Viewed 1927 times ]
Top
 Profile  
Reply with quote  
Display posts from previous:  Sort by  
Post new topic Reply to topic  [ 89 posts ]  Go to page 1, 2, 3, 4, 5, 6  Next

All times are UTC + 8 hours


You cannot post new topics in this forum
You cannot reply to topics in this forum
You cannot edit your posts in this forum
You cannot delete your posts in this forum
You cannot post attachments in this forum

Search for:
Jump to:  
cron

Powered by phpBB® Forum Software © phpBB Group
Portal by phpBB3 Portal © phpBB Türkiye
[ Time : 0.122s | 19 Queries | GZIP : Off ]