All times are UTC + 8 hours




Post new topic Reply to topic  [ 31 posts ]  Go to page 1, 2, 3  Next
Author Message
 Post subject: The addiction continues
PostPosted: Apr 23rd, '17, 19:40 
Bordering on Legend
Bordering on Legend

Joined: Jan 4th, '15, 21:32
Posts: 359
Gender: Male
Are you human?: 00011100110011001110
Location: Blue Mountains, NSW, Australia
In preparation for the new house to be built I have started throwing together numbers for the new system.

At this stage the dream would be to have a system I can pull 2 fish out of around once a week, with some left over for friends and family.

I hoping the below would allow me to stock approximately 200 fish a year made up of 100 silver perch and 100 rainbow trout.

My experience so far is that I can grow the trout from April/May through to around November, at which stage they are plate sized.

The silver perch will be in the system year round. I'm hoping add 100 each year. The silver perch take around 2 years to get to plate size in my climate.

For the tanks I am thinking of putting in a 5000l water tank cut in half for 2, 2500l fish tanks.

For grow beds I'm thinking of making up 4 media beds 1m wide x 4m long x 40cm high, and 4 raft beds the same as above but only 60cm wide. The beds will be similar construction to columns.

The above should give me around 4800l of media depending on how high I fill the beds.

I will more then likely run a radial flow, static up flow and bio filter but excluding those, I'm looking for feed back on if the above will support the fish load.


Top
 Profile  
Reply with quote  
    Advertisement
 
PostPosted: Feb 18th, '18, 16:36 
Bordering on Legend
Bordering on Legend

Joined: Jan 4th, '15, 21:32
Posts: 359
Gender: Male
Are you human?: 00011100110011001110
Location: Blue Mountains, NSW, Australia
Looking for feed back on some numbers

4x ibc fish tanks
11x 300l ibc growbeds
1x rff
1x mbbf with 100l of k1

Im hoping to run 30-40 fish in each ibc to 500g.

Fish load across the whole system is unlickly to be at max as each tank will have fish of diferent ages. E.g. trout in 2 through winter silver perch in the other 2 the whole time.

Once a suitable rainwater tank comes available i am planning on swapping 2 of the ibc for it.

Sound reasonable or pushing the limits?

Sent from my SM-N910G using Tapatalk


Top
 Profile  
Reply with quote  
PostPosted: Feb 18th, '18, 17:17 
A posting God
A posting God
User avatar

Joined: Sep 29th, '14, 13:15
Posts: 2146
Location: Australia
Gender: Male
Are you human?: mostly
Location: Perth, West Aust
>> For the tanks I am thinking of putting in a 5000l water tank cut in half for 2, 2500l fish tanks.

great idea.... that will be very good for the fish numbers you are talking.

>> Im hoping to run 30-40 fish in each ibc to 500g.

that is pushing the limit IMO. Higher risk setup. Prefer your circular tank.
If you want to grow fish at this level then you have to move on from IBC FT's IMO.
Larger diameter circular tanks offer much better environments than any IBC (which are tall and deep)


Top
 Profile  
Reply with quote  
PostPosted: Feb 18th, '18, 17:34 
Bordering on Legend
Bordering on Legend

Joined: Jan 4th, '15, 21:32
Posts: 359
Gender: Male
Are you human?: 00011100110011001110
Location: Blue Mountains, NSW, Australia
Totally agree dlf_perth i have been looking for a suitable tank for the last 12 month just nothing in the price range has come up.

At my previous place i was able to run 60 trout split between 2 ibcs with 3 grow beds and the bio filter. 1x 450l and 2x 300l. Trout came out at around the 600-800g mark at the end of the season.

Hopefully something will come up in my searches. If not i will swap out the ibcs when i find something. Will just make sure i leave the room for the tanks.

Sent from my SM-N910G using Tapatalk


Top
 Profile  
Reply with quote  
PostPosted: Jun 9th, '18, 13:34 
Bordering on Legend
Bordering on Legend

Joined: Jan 4th, '15, 21:32
Posts: 359
Gender: Male
Are you human?: 00011100110011001110
Location: Blue Mountains, NSW, Australia
I've started to break ground finally on the new system :)

Here is the plan for the overall layout and the gravity lines form the fish tanks through the filters to the grow beds.

All the pipework in green will be 90mm PVC, yellow will be 25mm with taps. at the end of each 90mm run, will be a screw cap to allow flushing out the pipework of any settled solids.

Fist tanks at this stage are ibc's. hopefully at some stage i will be able to swap for round tanks. I've left plenty of room around them to allow for this.

Grow beds are ibcs half's cut down to 400L.

Sump tanks are 2 whole ibcs connect via a 90mm pipe.

There is about a 1-2m fall to the land from ground level at the fish tanks to the sump tanks.

Each row of grow beds will be level and around 70cms from ground level to the top of the bed.

The sump tanks will be burred with the tops around ground level. This is to allow the lowest row of grow bed's to completely drain.

Attachment:
File comment: Gravity Lines
GravityLines.PNG
GravityLines.PNG [ 24.34 KiB | Viewed 16631 times ]


Top
 Profile  
Reply with quote  
PostPosted: Jun 9th, '18, 13:44 
Bordering on Legend
Bordering on Legend

Joined: Jan 4th, '15, 21:32
Posts: 359
Gender: Male
Are you human?: 00011100110011001110
Location: Blue Mountains, NSW, Australia
Each bed will have a bell siphon connected to a 25mm pvc line that will discharge into a 90mm pvc main drain line that runs to the sump tanks.

There will be access to the drain lines at the end of each run similar to the gravity lines into the beds.

Attachment:
File comment: Drain Lines
DrainLines.PNG
DrainLines.PNG [ 30.45 KiB | Viewed 16631 times ]


Top
 Profile  
Reply with quote  
PostPosted: Jun 9th, '18, 14:02 
Bordering on Legend
Bordering on Legend

Joined: Jan 4th, '15, 21:32
Posts: 359
Gender: Male
Are you human?: 00011100110011001110
Location: Blue Mountains, NSW, Australia
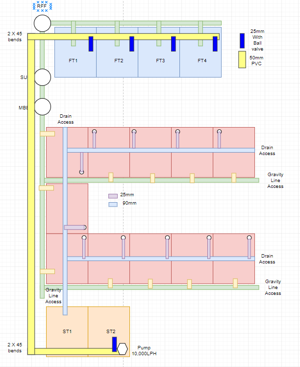
I have a 10,000 LPH pump left from my last system that i am hoping can cope with the total head height of the new system.

I am going to use 50mm PVC for the charged lines back to the fish tanks. This will step down to 25mm at each tank with a ball valve to allow control of the flow into the fish tanks. There will also be a T with either a 50mm or 25mm valve next to the pump if i have excess flow to the tanks.

Attachment:
File comment: Charged Lines
ChargedLines.PNG
ChargedLines.PNG [ 39.36 KiB | Viewed 16631 times ]


Time dig the sump tanks hole and drainage trench.


Top
 Profile  
Reply with quote  
PostPosted: Jun 11th, '18, 15:41 
Bordering on Legend
Bordering on Legend

Joined: Jan 4th, '15, 21:32
Posts: 359
Gender: Male
Are you human?: 00011100110011001110
Location: Blue Mountains, NSW, Australia
The hole for the first sump tank has been dug, along with a drainage trench to allow the hole to drain in heavy rain.

I am planning on putting 100mm socked ag pipe in the trench and up the side of the ibc.

As for the ibc cage i am thinking about wrapping it in builders plastic before putting in the bladder and back filling the hole.

Not sure at this stage on what i am going to use for a lid. ImageImage

Sent from my SM-N910G using Tapatalk


Top
 Profile  
Reply with quote  
PostPosted: Jun 13th, '18, 05:09 
Valued Contributor
Valued Contributor

Joined: Feb 25th, '17, 03:15
Posts: 89
Location: Orange County CA
Gender: Male
Are you human?: Yes.
Location: ORange County CA
wow, crazy layer of rock there.

Not sure what your temps are, but I wish i had insulated my small system, I'm sure it would help in both summer and winter keeping temps more stable with less heater help in winter.

As for a lid, i'm sure you can construct a wood frame with netting to keep fish from jumping out. Maybe a couple of hinges so that is opens like a car hood or something.


Top
 Profile  
Reply with quote  
PostPosted: Jun 13th, '18, 08:57 
Site Admin
Site Admin
User avatar

Joined: Mar 12th, '06, 07:56
Posts: 17803
Images: 4
Location: Perth
Gender: Male
Blog: View Blog (1)
Ouch, looks like painful digging....

Good planning for the drainage. And definitely think of putting something around the cage if you can, tin, wood, plastic, just something to keep the pressure from the thin bladder in wet weather. I have memories of outbackozzie having an IBC sump collapse on him after heavy rain. Somewhere in his thread I think viewtopic.php?f=18&t=2218


Top
 Profile Personal album  
Reply with quote  
PostPosted: Jun 13th, '18, 09:23 
Legend Member
Legend Member

Joined: Mar 29th, '15, 16:06
Posts: 752
Gender: Male
Are you human?: yes
Location: Austalia, SA Pt lincoln
fixing your fence wouldnt go amiss either mate. :laughing3:


Top
 Profile  
Reply with quote  
PostPosted: Jun 13th, '18, 18:54 
Bordering on Legend
Bordering on Legend

Joined: Jan 4th, '15, 21:32
Posts: 359
Gender: Male
Are you human?: 00011100110011001110
Location: Blue Mountains, NSW, Australia
DanaPT wrote:
wow, crazy layer of rock there.

Not sure what your temps are, but I wish i had insulated my small system, I'm sure it would help in both summer and winter keeping temps more stable with less heater help in winter.

As for a lid, i'm sure you can construct a wood frame with netting to keep fish from jumping out. Maybe a couple of hinges so that is opens like a car hood or something.
Im hoping with the sump tanks in the ground this will help stabalize temps. I might wrap the grow beds and fishtanks in some sort of insulation before i cald them. Will have to find something that can get wet.

Sent from my SM-N910G using Tapatalk


Top
 Profile  
Reply with quote  
PostPosted: Jun 13th, '18, 19:04 
Bordering on Legend
Bordering on Legend

Joined: Jan 4th, '15, 21:32
Posts: 359
Gender: Male
Are you human?: 00011100110011001110
Location: Blue Mountains, NSW, Australia
earthbound wrote:
Ouch, looks like painful digging....

Good planning for the drainage. And definitely think of putting something around the cage if you can, tin, wood, plastic, just something to keep the pressure from the thin bladder in wet weather. I have memories of outbackozzie having an IBC sump collapse on him after heavy rain. Somewhere in his thread I think viewtopic.php?f=18&t=2218
Yeah it was 6 hours straight on the demo hammer to break through the rock shelf. I was going to have the sump tank level with the ground but i the sandstone just got to hard to break up. I got it low enough to below the lowest growbed.

As for around the sump tanks i was thinking of using 200um builders plastic as a wrap around the cage to keep the dirt back. Do you think this will be enough or do i need to spend some coin on some colorbond?

Sent from my SM-N910G using Tapatalk


Top
 Profile  
Reply with quote  
PostPosted: Jun 13th, '18, 19:07 
Bordering on Legend
Bordering on Legend

Joined: Jan 4th, '15, 21:32
Posts: 359
Gender: Male
Are you human?: 00011100110011001110
Location: Blue Mountains, NSW, Australia
Tonzz wrote:
fixing your fence wouldnt go amiss either mate. :laughing3:
Hahah yeah one day it will get replaced. Got plenty of rocks to prop it up with now at least.

Sent from my SM-N910G using Tapatalk


Top
 Profile  
Reply with quote  
PostPosted: Jun 15th, '18, 18:11 
Bordering on Legend
Bordering on Legend
User avatar

Joined: Mar 23rd, '16, 10:35
Posts: 261
Location: Altona, Vic
Gender: Male
Are you human?: Occasionally
Location: Altona Australia
Looking good so far Signore. Having the rock layer might actually be a good thing (after all the huffing, puffing and sweat) if it forces you to not bury the sumps so deep, meaning less work for the pump and therefore less running costs. If you ever go solar, this can make quite a difference.
I can see a greenhouse on the cards in the future to keep those SP's feeding over winter he he.
Good luck with your system and I look forward to watching it develop.


Top
 Profile  
Reply with quote  
Display posts from previous:  Sort by  
Post new topic Reply to topic  [ 31 posts ]  Go to page 1, 2, 3  Next

All times are UTC + 8 hours


You cannot post new topics in this forum
You cannot reply to topics in this forum
You cannot edit your posts in this forum
You cannot delete your posts in this forum
You cannot post attachments in this forum

Search for:
Jump to:  
cron

Powered by phpBB® Forum Software © phpBB Group
Portal by phpBB3 Portal © phpBB Türkiye
[ Time : 0.054s | 17 Queries | GZIP : Off ]