⚠️ This forum has been restored as a read-only archive so the knowledge shared by the community over many years remains available. New registrations and posting are disabled.

All times are UTC + 8 hours




Post new topic Reply to topic  [ 8 posts ] 
Author Message
PostPosted: Nov 19th, '11, 00:48 
Legend Member
Legend Member
User avatar

Joined: Oct 3rd, '09, 04:42
Posts: 882
Location: Cape Town South Africa
Gender: Male
Are you human?: Sadly
Location: South Africa Cape Town
Next challenge is to build an integrated blue barrel growbed with an integrated solids filter and digester. The bed will be 3 half blue barrels bolted to a welded frame. The frame is clad with wood and framed at the top. Beneath the barrels is a 150mm pipe which acts as a filter. The fishtank fitted with a slo runs into the top of one side of the filter pipe pipe. The standpipes come down into the 150 filter pipe from above. From the bottom of the 150 filter pipe is a drain fitted with a servo. This drains into the sump which is a barrel on its side somewhat sunk into the ground. The ifo is fitted with a screwcap for cleaning and solids removal.

When the pump is on the servo is closed and water runs into the beds via the filter pipe and solids are trapped in brush filters and also just settle in the pipe. Water flows up the standpipe flooding the bed. A stand pipe to the sump on the fish tank Pump goes off and servo opens water drains down the standpipes through the filters and into the sump.

The thing is if the pump pumps the beds full then the beds would just overflow as the water is coming up the only exit. So I thought if you set up the height of the growbeds and fishtank in such that an overflow on thge fishtank back to the sump eliminated that risk you effectively need the standpipe to enable the slow adjustable drain down time. Water height in the beds is dependent on the overflow from the fish tank.

Why do it you ask. Solids... Yuck! Extra filtration for a bit more fish load in a small system. I am probably wrong but could be less plumbing as you don't need to deal with beds flooding at different speeds through pesky taps that never seem properly timed. Cause it will be fun.

I already made the welded a lot of frame so there is no turning back.


Top
 Profile  
Reply with quote  
    Advertisement
 
PostPosted: Nov 19th, '11, 03:40 
Bordering on Legend
Bordering on Legend
User avatar

Joined: May 2nd, '10, 21:06
Posts: 394
Location: Melbourne
Gender: Male
Are you human?: mostly
Location: Bentleigh, Melbourne, Victoria, Oz
hmmm sounds confusing. not sure i like the sound of collecting solids in a pipe. Isn't that what the beds do? Maybe a TAD design would help?


Top
 Profile  
Reply with quote  
PostPosted: Nov 19th, '11, 04:27 
Legend Member
Legend Member
User avatar

Joined: Jun 29th, '09, 22:04
Posts: 534
Location: a stone's throw from Keegans Bayou
Gender: Male
Are you human?: CoffeeBasedLifeForm
Location: Texas>Houston>Alief
Who is "Theifo" and why does he wear a screwcap?

Just kidding, this is intriguing and I think I have a picture of it mentally.
I will give it a think tonight and let you know if I can poke any holes in it.
I have 50 miles to drive to a gig tonight, and then 150 even more boring miles to catch up with my family so I can run it thru the ol' simulator a few times.

Question: isn't this pipe routing likely to let the solids run straight back into the pump as soon as it shuts off? Pump's in the sump, right? Where does it feed into the 150 pipe?

I'll warn you, I am liable to install a FLOUT somewhere in there given half a chance...

Rick


Top
 Profile  
Reply with quote  
PostPosted: Nov 19th, '11, 04:34 
Legend Member
Legend Member
User avatar

Joined: Oct 3rd, '09, 04:42
Posts: 882
Location: Cape Town South Africa
Gender: Male
Are you human?: Sadly
Location: South Africa Cape Town
Well yes solids do go in the beds but they don't need to. the solids are gross. I can't actually feed my trout that much as my growbeds are then overwhelmed with solids. The nitrate that you want comes from the converted ammonia that the fish let off from their gills. What comes from their bums is not desirable for the most part and eventually the bed will need to be cleaned out. Gross. I know worms do help but then eventually there will be worm castings clogging the beds possibly. I am totally guessing here but if 10% of solids got to the growbeds that would be enough for minerals.

The pipe is basically just a pre-filter to remove solids. The solids are dumped in the one side of the pipe and then there is a fairly course sponge filter followed by a media like bio balls or one of those koi pond brush filters that can be slid down the pipe. Solids can then be drained from the pipe by opening a valve on the filter which acts like a backwash emptying solids and back washing the filter at the same time.

I am working on a drawing... will post.

Actually wrote that on first post on my blackberry. It is not quite legible in places...


Top
 Profile  
Reply with quote  
PostPosted: Nov 19th, '11, 05:35 
Bordering on Legend
Bordering on Legend
User avatar

Joined: May 2nd, '10, 21:06
Posts: 394
Location: Melbourne
Gender: Male
Are you human?: mostly
Location: Bentleigh, Melbourne, Victoria, Oz
:shock: yep well agree about the solids being yuk. I have a friend who has a bio-tank from their human waste and the water runoff is clean - they use it to grow vegies! so solids can be ok....but i'll stick to safe fish poo.


Top
 Profile  
Reply with quote  
PostPosted: Nov 19th, '11, 06:27 
Legend Member
Legend Member
User avatar

Joined: Oct 3rd, '09, 04:42
Posts: 882
Location: Cape Town South Africa
Gender: Male
Are you human?: Sadly
Location: South Africa Cape Town
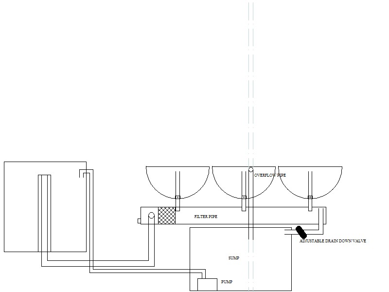
Here is a drawing. With this set up it may just be possible to not have the solenoid valve which would require a transformer and a relay which makes things complex and expensive.
Attachment:
BLUE BARREL GROWBED.jpg
BLUE BARREL GROWBED.jpg [ 33.39 KiB | Viewed 2313 times ]


Top
 Profile  
Reply with quote  
PostPosted: Nov 19th, '11, 06:45 
Legend Member
Legend Member
User avatar

Joined: Oct 3rd, '09, 04:42
Posts: 882
Location: Cape Town South Africa
Gender: Male
Are you human?: Sadly
Location: South Africa Cape Town
The flood level is set by the overflow on the central half blue barrel. The beds fill quickly from the pump and then drain down slowly through the adjustable hole at the bottom of the standpipe. The draindown valve is set to approximate the flow of the three beds together draining through their small holes. The filter pipe stays mostly full of water. The cross hatched section is a course sponge filter to keep the solids back. A valve on that side at the bottom can be opened to flush the filter and drain solids. A screwcap allows for the whole filter to be cleaned out from time to time.

I have not really drawn to scale here. Its just a schematic thing. The idea is each bank of three or 4 barrels would have their own filter and their own barrel sump all hidden away under the wood cladding. So it is a modular system and can be coupled to a veriety of fish tank sizes. A IBC could have many banks attached but all the sumps would need to be connected with fairly large pipe.


Top
 Profile  
Reply with quote  
PostPosted: Nov 19th, '11, 13:51 
Legend Member
Legend Member
User avatar

Joined: Oct 3rd, '09, 04:42
Posts: 882
Location: Cape Town South Africa
Gender: Male
Are you human?: Sadly
Location: South Africa Cape Town
Will this work or am I wasting my time with this approach?


Top
 Profile  
Reply with quote  
Display posts from previous:  Sort by  
Post new topic Reply to topic  [ 8 posts ] 

All times are UTC + 8 hours


You cannot post new topics in this forum
You cannot reply to topics in this forum
You cannot edit your posts in this forum
You cannot delete your posts in this forum
You cannot post attachments in this forum

Search for:
Jump to:  
cron

Powered by phpBB® Forum Software © phpBB Group
Portal by phpBB3 Portal © phpBB Türkiye
[ Time : 0.178s | 15 Queries | GZIP : Off ]