⚠️ This forum has been restored as a read-only archive so the knowledge shared by the community over many years remains available. New registrations and posting are disabled.

All times are UTC + 8 hours




Post new topic Reply to topic  [ 376 posts ]  Go to page 1, 2, 3, 4, 5 ... 26  Next
Author Message
PostPosted: Jan 13th, '07, 03:12 
Legend Member
Legend Member

Joined: Nov 23rd, '06, 22:37
Posts: 504
Location: Michigan
Gender: Male
Location: Michigan, USA
[font=Times New Roman] [/font] I will provide a floor plan and some photos. I will discuss how I built the building and how I am equipping the system. Because of the computer control, this system leaves 'simple is reliable' world and goes to 'the more intelligent the system, the better it works' world. Normally, people think of simple systems as using energy more efficiently. I am a controls engineer and I know that energy management, redundancy, and fault detection and compensation are the key to deterministic, reliable operation.

I have two areas of interest that put me in aquaponics.

The first is my desire to lead a self sufficient life style.
I have 10 acres (4 hectares) of land with gardens, fruit trees, and bush fruit. We have alternate power and heating. We also do some canning and preserving of our food. It is our own little homestead. Now we have fish and greenhouse produce. I have always back packed and canoed into wilderness areas and I have found great value in being tuned to the cycle of life.

The second is that I have toured commercial and university and government facilities for aquaponics and aquaculture and I see a need to improve the current state of these facilities. I have found that many facilities actually fail. The reason is low or no profit. The causes of the lack of profitability has been:
a) poor facility design b) large energy expeditures c) high man power requirements d) loss of production due to system failure and lack of recovery (caused by lack of detection, lack of response measures, lack of redundancy). My career was the design of vehicle powertrain controllers and computerized instrumentation. There are answers to many of the challenges in aquaponics in embedded computerized controls. I have moved from vehicle automation to aquaponic/aquaculture automation. So my aquaponic system is a test bed and learning aid for this endeavor.

Now I step off the soap box and get into explaining the system.
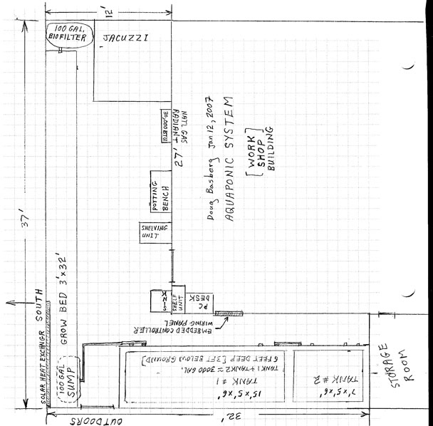
I will try to download a floor plan of my aquaponics building. If that works, I will explain it in the next post.

Here goes...


Attachments:
File comment: I will discuss the 'plumbing in text. It was too complex to show in floor plan.
ETL_01_web.jpg
ETL_01_web.jpg [ 74.15 KiB | Viewed 12381 times ]
Top
 Profile  
Reply with quote  
    Advertisement
 
 Post subject:
PostPosted: Jan 13th, '07, 03:58 
Legend Member
Legend Member

Joined: Nov 23rd, '06, 22:37
Posts: 504
Location: Michigan
Gender: Male
Location: Michigan, USA
I will add some photos in a day or two when I can pick out and squeeze down some photos.

We will raise catfish, blue gill, and yellow perch. The vegies will be what we like to eat (tomatoes, cucumbers, squash, beans, basil, etc.)

The plumbing allows operation with just tank1 or with tank1 & tank2 by switching valves. My spring startup will use just tank1. My production is a two year cycle with the younger fish in tank2 until tank1 is harvested. I have two mag pumps (800gph & 1200gph @ 6ft head) in parallel with check valves. Either can be turned on/off by computer control. I alternate use to even wear. This redundancy protects from pump failure. There is a pressure detector in the pump line to check for operation. The computer also detects power failure and goes to battery saver mode. All of the system is run from a bank of deep cycle 12 v batteries. When the 120vac charging the batteries goes down, then battery only operation commences. The pumps are in the fish tank and are plumbed to the biofilter at the high end of the grow bed. The bio filter is implemented in a 100 gallon 'stock' tank. It is upflow and it spills into the grow bed. The upflow filter will be an experimental unit bound to change as I learn more. Initially it will contain layers of pea gravel, then lava rock, then plastic bio media, and finally a filter wool blanket material from Aquatic Eco Systems in Florida.

My grow bed is a 'deep flow technique'(DFT) trough. It is 3'X 32' x 8" deep. It is made from pressure treat lumber with a PVC liner. There is no gravel or other media in my trough. It just contains 7" of fish water. The flow is from the biofilter end to a stand pipe at the sump end. If pumping stops, then the water remains in the grow beds at the stand pipe height. The sump gravity feeds back to the fish tank #1. The sump also contains a stand pipe and maintains a none zero level. This tank might have several useful purposes. You can keep some fish here or plants or both. Notice the 'PC Desk' in the attached shop building. The embedded control computer is in the thru wall interface area next to the desk. This is a better environment for a computer (lower humidity and better temperature).

Alright, I know you spotted the Jacuzzi hot tube and think we are decadent. So be it! If we ever get tired of it [fat chance], we can grow fish in it. The Tilapia would love the temperature.

I will maintain DO using two 12" air stones flowing 2 cu ft/min from a 50 watt diaphram air pump.

Note that I am not done building the system. Startup will be this spring.
Right now I am automating the vents in the front knee wall (11 vents) and building the heat exchanger system. Then I will build the grow beds and filter tanks. Then a lot of plumbing to close the system. Then the first tank fill and conditioning the biofilter using starter from an aquarium that I have 5 channel catfish in and buildup using liquid ammonia. When the bacteria, plants, and water temp are right, then in go 400 or so fish.
THEN THE FUN BEGINS!!!

My idea of handling the plants is to use 'mesh pots' full of rich growing medium of compost, planter II, and potting mix. The seedlings will get their start in soil and then the roots will reach the fish water and grow like crazy. The mesh pots will be put in holes in a floating sheet of foam. The foam will fit the grow bed fairly well and keep light out to limit algae growth.

I am very interested in running the system with minimum energy and eventually from solar electric panels. The computerized system makes it easier for me to understand how much energy I am using and figure how many solar panels I need. By then, I hope the panel prices drop some.


Top
 Profile  
Reply with quote  
 Post subject:
PostPosted: Jan 13th, '07, 04:06 
A posting God
A posting God
User avatar

Joined: Nov 3rd, '06, 01:30
Posts: 3131
Location: Cochranville, Pennsylvania USA
Gender: Female
Are you human?: yes
Location: Pennsylvania, USA
Wow and Wow!!!


Top
 Profile  
Reply with quote  
 Post subject:
PostPosted: Jan 13th, '07, 04:17 
Bordering on Legend
Bordering on Legend

Joined: Dec 5th, '06, 02:25
Posts: 387
Location: North Carolina
Gender: Male
Doug - Like your setup, and will be watching with interest. We have similar interests, provide food. My main interest is to minimize my maintenance, yours is to minimize energy. I have some labor, but it won't get interested in the system until 1- it involves getting dinner, and/or 2- it involves seeing the fishies.
-Doug


Top
 Profile  
Reply with quote  
PostPosted: Jan 13th, '07, 04:22 
Seriously, this cant be healthy.
Seriously, this cant be healthy.
User avatar

Joined: Aug 24th, '06, 19:46
Posts: 6604
Location: sunbury
Gender: Male
Are you human?: no
Location: sunbury
Hi doug will be nice when its all going [ doug canning food with real cans or just bottels]


Top
 Profile  
Reply with quote  
 Post subject:
PostPosted: Jan 13th, '07, 04:27 
Almost divorced
Almost divorced
User avatar

Joined: Jun 26th, '06, 09:06
Posts: 1119
Location: New Zealand
Gender: Male
Nice one Doug, I'm quite keen on systems analysis which you seem to enjoy yourself.

One thing, with dirt leading to Aqua you run the risk of pythium and leave conditions perfect for fungus gnats.

Fast cropping, the pythium shouldn't be a problem, indeterminate plants in this set-up could well run into problems.

Also, what is your budget when adding all these extras.

Not knocking it, just interested to see if high tech can outperform low tech, taking into account the additional set-up costs and time.

And you'd save a lot of space putting the fish under the growbed. For maximum efficiency, real estate being the most expensive set-up cost.


Top
 Profile  
Reply with quote  
 Post subject:
PostPosted: Jan 13th, '07, 04:30 
Legend Member
Legend Member

Joined: Nov 23rd, '06, 22:37
Posts: 504
Location: Michigan
Gender: Male
Location: Michigan, USA
Quote:
Doug - Like your setup, and will be watching with interest. We have similar interests, provide food. My main interest is to minimize my maintenance, yours is to minimize energy. I have some labor, but it won't get interested in the system until 1- it involves getting dinner, and/or 2- it involves seeing the fishies.


I did not mention it, but I want to travel [my wife wants to travel more]. The automation will provide some window for travel, at least after I get some experience and know what the control software should do. My control computer is on the internet. When I was in Whitehorse, Yukon Territory this summer, I could still see conditions in my greenhouse. When I get enough software written, I should be able to see conditions and send commands to adjust operations. Of course, harvesting, weeding, pest control, cleaning, and planting will not be automated. It will be interesting to see what my travel window can be.
When I travel, my wife will be with me. Labor at home = 0. Probably travel would be best during the slow winter months, which is a fine time to go someplace warmer.


Top
 Profile  
Reply with quote  
 Post subject:
PostPosted: Jan 13th, '07, 04:33 
Xtreme Contributor
Xtreme Contributor

Joined: Dec 8th, '06, 04:30
Posts: 134
Location: chicago burbs
Gender: Male
Yeah, like she said!

I actually ran across your site before I found this forum. I'm very interested in seeing it in action. Can't wait 'til spring. So far yours is the only one I've seen using a cement tank, which is the way I think will probably most efficient for places like the West Indes, Haiti and the like.

Oh, and decadent, schmecadent... When I get my permanent greenhouse built, my jacuzzi's going in there too! I can't think of a better placement for year-round use.


Top
 Profile  
Reply with quote  
 Post subject:
PostPosted: Jan 13th, '07, 04:48 
Legend Member
Legend Member

Joined: Nov 23rd, '06, 22:37
Posts: 504
Location: Michigan
Gender: Male
Location: Michigan, USA
AD, you nailed me on the expense issue. I have waaay too much into this - not at all practical on cost of fish and veg basis. The building alone was about $25,000US with me doing all work except concrete. Then the cost of controls, motors, elctronics, computers, etc. WOW!!

This is a hobby, a business (perhaps), and a source of top quality food. It still is a lot of money! On the other hand a friend put in a new garage for about the same cost. People who build custom cars/cycles/airplanes put my costs to shame, so it is all what you want to do with your money. I do this and do not go to Vegas.

The pythium is of great interest to me. Dr. Nick Savidov talked me out of using gravel because he thought that made me more susceptable to pythium. He uses DFT with sterile hydroponic media (hydroton<sp?>)
Do you think my introduction of soil will get me back to pythium? Almost everyone at the forum is using the S&S gravel bed method. How is that for pythium? I am very interested in your opinions on this. I will be growing indeterminate tomatoes, but planned to replace them about every six months (to avoid pythium) and do a big cleanout of the grow bed at that time.

My vents in the front knee wall open in and use up a lot of underbench space. How would you harvest from underbench tank? My fish tanks are not in sun light, so they have no direct heat gain. That is another problem, but light does not cause algae blooms.


Top
 Profile  
Reply with quote  
 Post subject:
PostPosted: Jan 13th, '07, 05:01 
Legend Member
Legend Member

Joined: Nov 23rd, '06, 22:37
Posts: 504
Location: Michigan
Gender: Male
Location: Michigan, USA
I have two web sites where some pictures of the greenhouse can be found. One is our family web
site www.thebasbergs.com
and the other is my business web site
www.dsbengg.com


Top
 Profile  
Reply with quote  
 Post subject:
PostPosted: Jan 13th, '07, 05:12 
Almost divorced
Almost divorced
User avatar

Joined: Jun 26th, '06, 09:06
Posts: 1119
Location: New Zealand
Gender: Male
Fully understand you throwing money into your hobbies, and why not, you earned it, you enjoy it.

The ebb and flow design is fairly pythium friendly due to the drain cycle assisting in cooling of the beds, and the heavy aeration. This coupled with a healthy michorhizal (spelling?) fungi population makes it very hard for any root disease to take hold.

Pythium loves it warm.

I was thinking 80% of tank under growbed and enough uncovered to harvest and view fish. Only a thought. It's something I've been considering for a small commercial operation space being a limiting budget factor.

Soil does bring problems, I've been that way, the wicking action keeps the pots constantly wet, the air roots like a break from this in many plant species.

I'm hoping to set up so I too can holiday.

Ebb and flow on auto siphon with a safety runoff. Fish feeder, float valve, done.

Just have to ensure I 'de-root' all standpipes, and keep holiday under a fortnight. Those roots can stop the flow eventually. Hence the safety runoff.

I leave home for days on end now, the fish get hungry but I don't lose sleep.

I've spent thousands on AP, would have been more if I had it :D


Top
 Profile  
Reply with quote  
 Post subject:
PostPosted: Jan 13th, '07, 05:34 
Xtreme Contributor
Xtreme Contributor
User avatar

Joined: Dec 19th, '06, 10:02
Posts: 222
Location: Strathbogie ranges Victoria
Gender: Male
Doug_Basberg wrote:
My control computer is on the internet. When I was in Whitehorse, Yukon Territory this summer, I could still see conditions in my greenhouse. When I get enough software written, I should be able to see conditions and send commands to adjust operations..


Hi Doug.
If your control PC already has functions to do some system changes already and seeing that it is already connected to a network you should be able to do those changes remotely already.

There is remote desktop for a not as secure connection or you can set up a VPN ( virtual private network) a bit trickier but a more secure connection.

Most modern day PC's have a wake up on Lan and wake up on ring settings in the BIOS so in the case of a power outage and the PC shuts down you can restart the PC remotely also. (as long as power has been restored)

I would seriously recomend installing a dialup modem onto the PC just in case your ISP falls over it would be a bit more expensive on the phone call but at least the PC will restart.

All these fuctions are already available on your PC.

Cheers
Ron


Top
 Profile  
Reply with quote  
 Post subject:
PostPosted: Jan 13th, '07, 06:19 
Legend Member
Legend Member

Joined: Nov 23rd, '06, 22:37
Posts: 504
Location: Michigan
Gender: Male
Location: Michigan, USA
Thanks Ron. In fact, I was talking to my PC last summer. But I will need to talk to my embedded computer (a Rabbit RCM4000 processor) when I want to adjust the controls. The RCM4000 is directly on the LAN, so any computer at my location can talk to it. Two ways to proceed. I can talk to one of my PCs and take over the console and talk to the RCM4000 from the LAN PC. The other way is direct from my PC in a coffee shop to the RCM4000. In each case, I use 128 bit security, which is the same level I use with banking.

The phone line modem idea is an excellent backup for my ISP being down. Thanks for the idea.


Top
 Profile  
Reply with quote  
 Post subject:
PostPosted: Jan 13th, '07, 11:14 
Legend Member
Legend Member

Joined: Nov 23rd, '06, 22:37
Posts: 504
Location: Michigan
Gender: Male
Location: Michigan, USA
F&F I meant canning in Mason jars. The fresh produce from the greenhouse should reduce the canning required. That is fine with me. The canning is a lot of work. We will still dp some canning for sure.


Top
 Profile  
Reply with quote  
 Post subject:
PostPosted: Jan 13th, '07, 12:06 
Xtreme Contributor
Xtreme Contributor
User avatar

Joined: Nov 3rd, '06, 15:21
Posts: 210
Location: Calgary, AB Canada
Gender: Male
Hello Doug,
Dr. Savidov and the CDC group are actually using coir in net baskets now for their strawberry cultivation.
Thus far it shows to be very positive, which follows my experience thus far as well.
I highly recommend it.
My mind has been rich in contemplation since I attended the meeting on Tuesday at the CDC with Nick. It was very stimulating conversing with people from several areas related to food cultivation and aquaculture.
Their plant pathologist, Ron Howard spoke about their experience with Pythium.
One thing that really struck me was the intensity of cultivation. Nick said they run their nitrates around 150- 200 ppm. The water is not clear, probably due to the high flow system. I am somewhat stuck between the concepts of dft and media growbed. I am going to try filling a bed with coir
to see its performance. Part of me just likes seeing something resembling soil, instead of foam floating on water.
I believe that if redworms are maintained properly in a growbed, they should be capable of keeping organic wastes down, controlling pythium.
Proper management is critical, and this is definitely where you come in. :)
Your knowledge of event controlling will help adapt the aquaponics technology to our age. I look forward to seeing your work develop.

Hayden


Top
 Profile  
Reply with quote  
Display posts from previous:  Sort by  
Post new topic Reply to topic  [ 376 posts ]  Go to page 1, 2, 3, 4, 5 ... 26  Next

All times are UTC + 8 hours


You cannot post new topics in this forum
You cannot reply to topics in this forum
You cannot edit your posts in this forum
You cannot delete your posts in this forum
You cannot post attachments in this forum

Search for:
Jump to:  

Powered by phpBB® Forum Software © phpBB Group
Portal by phpBB3 Portal © phpBB Türkiye
[ Time : 0.132s | 15 Queries | GZIP : Off ]