⚠️ This forum has been restored as a read-only archive so the knowledge shared by the community over many years remains available. New registrations and posting are disabled.

All times are UTC + 8 hours




Post new topic Reply to topic  [ 88 posts ]  Go to page Previous  1, 2, 3, 4, 5, 6  Next
Author Message
PostPosted: Dec 10th, '09, 22:05 
Xtreme Contributor
Xtreme Contributor

Joined: Dec 5th, '09, 18:07
Posts: 105
Gender: Male
Are you human?: most of the time
Location: Bushland Beach, TOWNSVILLE
Pretty sharp eye there burnsey. Yes it's a mockup of a Blackhawk helicopter. Not used for anything. You would also have noticed the nice grass we have at present in "brownsville" :lol:

obo - advice accepted.


Top
 Profile  
Reply with quote  
    Advertisement
 
PostPosted: Dec 10th, '09, 23:10 
Seriously, this cant be healthy.
Seriously, this cant be healthy.
User avatar

Joined: Dec 6th, '07, 01:13
Posts: 10709
Images: 0
Location: central FL
Gender: Female
Are you human?: YES at least mostly
Location: USA, Florida, Yalaha
I agree with OBO, deeper growbeds are just fine, great in fact! I've got 4, 700 mm deep grow beds and will probably have two more next season to replace more of my old 300 mm deep ones.


Top
 Profile  
Reply with quote  
PostPosted: Dec 11th, '09, 03:18 
Spam Assassin (Be afraid!)
Spam Assassin     (Be afraid!)
User avatar

Joined: Aug 24th, '06, 11:50
Posts: 10202
Location: Townsville
Gender: Female
Location: home
Mal, deeper grow beds up here give some protection from the heat for the plants and the water.


Top
 Profile  
Reply with quote  
PostPosted: Dec 11th, '09, 03:39 
Seriously, this cant be healthy.
Seriously, this cant be healthy.
User avatar

Joined: Aug 24th, '06, 19:46
Posts: 6604
Location: sunbury
Gender: Male
Are you human?: no
Location: sunbury
Outbackozzie wrote:
400mm deep growbeds are awesome! The deeper the better as far as I am concerned.

Yep deep deds are good one thing to learn in ap once you cut it off its very hard to put it back on
[i had a ripping tank here cut it and later could have used it for a fish tank]


Top
 Profile  
Reply with quote  
PostPosted: Dec 24th, '09, 13:22 
Xtreme Contributor
Xtreme Contributor

Joined: Dec 5th, '09, 18:07
Posts: 105
Gender: Male
Are you human?: most of the time
Location: Bushland Beach, TOWNSVILLE
just an update for your Chrissy present :lol: Photos too! :cheers:

The IBC turned out to be brittle. Mate scored that for making a mango picker safety cage for his forklift :shock:

However, did manage to score the green tank (previous photos). Wall thickness is (measured) 10mm. Guy said the tank place who made it had his kids in it for a "splashing pool".

Boy it's hot and humid up here at present. Only work early morning or late arvo. (when the midgie's are not out).

There's got to be a better way than this 3 photo limit. I'll make my own montage and post later :evil:

Mal


Top
 Profile  
Reply with quote  
PostPosted: Dec 24th, '09, 13:47 
Xtreme Contributor
Xtreme Contributor

Joined: Dec 5th, '09, 18:07
Posts: 105
Gender: Male
Are you human?: most of the time
Location: Bushland Beach, TOWNSVILLE
Last two photos is SC Carport for $179. I'm going to use two of them with shadecloth over both. At present have put one to good use. Note: Green tank on back of trailer.

Here is EIGHT photos in ONE.....

If you want a larger photo of any one of them just ask.

Mal


Attachments:
File comment: Follow the photos - Left > Right; Top > Bottom.
Consortium Build.jpg
Consortium Build.jpg [ 62.89 KiB | Viewed 2688 times ]
Top
 Profile  
Reply with quote  
PostPosted: Dec 31st, '09, 06:10 
Xtreme Contributor
Xtreme Contributor

Joined: Dec 5th, '09, 18:07
Posts: 105
Gender: Male
Are you human?: most of the time
Location: Bushland Beach, TOWNSVILLE
Had a bit of rain this morning. Filled my 22,000 litre tank in about 90 minutes. I found my rain gauge had fallen over about an hour after it started. Stood it up and recorded 70mm (tipped it out) and by 7.30 had another 120mm (tipped out). I suspect about 250mm (10 inches) in about five hours. Looks like the wet season has started.

Me thinks I may have to put a solid roof over the AP setup.

:cheers: Ah yes piccies ....


Attachments:
File comment: "Clancy"
clancy.JPG
clancy.JPG [ 32.62 KiB | Viewed 2642 times ]
Top
 Profile  
Reply with quote  
PostPosted: Jan 24th, '10, 10:29 
Xtreme Contributor
Xtreme Contributor

Joined: Dec 5th, '09, 18:07
Posts: 105
Gender: Male
Are you human?: most of the time
Location: Bushland Beach, TOWNSVILLE
I gave the cheapie carports the flick. In two weeks the silver roof lining was perished and falling to pieces. Took both of them back to SC and they refunded the money. Decided to resurrect an old 6 x 3 colourbond garage that I had previously dismantled to make way for my 'real' shed.

Setup the skeleton to get the exact measurements ....


Attachments:
tn_siting shed.JPG
tn_siting shed.JPG [ 88.32 KiB | Viewed 2550 times ]
File comment: watched by my offsider ...
tn_inquisitive goanna.JPG
tn_inquisitive goanna.JPG [ 80.35 KiB | Viewed 2546 times ]
tn_shed layout.JPG
tn_shed layout.JPG [ 79.72 KiB | Viewed 2545 times ]
Top
 Profile  
Reply with quote  
PostPosted: Jan 24th, '10, 10:38 
Legend Member
Legend Member
User avatar

Joined: Oct 30th, '09, 08:53
Posts: 669
Gender: Male
Are you human?: yes
Location: Palmwoods Sunshine Coast QLD
Nice angles there Mal, has character :lol:


Top
 Profile  
Reply with quote  
PostPosted: Jan 24th, '10, 11:36 
Xtreme Contributor
Xtreme Contributor

Joined: Dec 5th, '09, 18:07
Posts: 105
Gender: Male
Are you human?: most of the time
Location: Bushland Beach, TOWNSVILLE
Hi Chainsaw

Over the last week I've managed to get a little bit done each day.


Attachments:
File comment: In with the Dingo post hole digger - all finished in 30 minutes
tn_dug the holes.JPG
tn_dug the holes.JPG [ 98.47 KiB | Viewed 2527 times ]
File comment: 7 x 300mm and 8 x 200mm all 600mm deep.
tn_holes.JPG
tn_holes.JPG [ 49.6 KiB | Viewed 2522 times ]
File comment: Bought a trailer load of river gravel (20mm for $20) to use for making concrete. Use the leftover for the GB.
tn_river gravel on trailer.JPG
tn_river gravel on trailer.JPG [ 96.85 KiB | Viewed 2523 times ]
Top
 Profile  
Reply with quote  
PostPosted: Jan 24th, '10, 11:43 
Xtreme Contributor
Xtreme Contributor

Joined: Dec 5th, '09, 18:07
Posts: 105
Gender: Male
Are you human?: most of the time
Location: Bushland Beach, TOWNSVILLE
then I managed to get a few of the holes filled with posts and concrete.


Attachments:
File comment: copper logs to be trimmed to height after the shed is positioned
tn_copper log posts.JPG
tn_copper log posts.JPG [ 87.44 KiB | Viewed 2517 times ]
File comment: A reminder for the grandson in years to come.
tn_apprentice reminder.JPG
tn_apprentice reminder.JPG [ 77.61 KiB | Viewed 2512 times ]
File comment: only had three holes left to finish today. Oh well time to watch the cricket ;-)
tn_sure I had a hole here somewhere.JPG
tn_sure I had a hole here somewhere.JPG [ 67.11 KiB | Viewed 2510 times ]
Top
 Profile  
Reply with quote  
PostPosted: Jan 25th, '10, 14:56 
Xtreme Contributor
Xtreme Contributor

Joined: Dec 5th, '09, 18:07
Posts: 105
Gender: Male
Are you human?: most of the time
Location: Bushland Beach, TOWNSVILLE
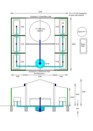
The last few days have been a washout weather wise :wink:

So I put the time to good use by designing my layout and my thoughts. I'm open to all constructive critiscism :|

These are my intital thoughts:

1. 22,500 Rainwater storage.
2. 240V electrics in shed (but also looking at 12V).
3. six bathtubs (various lengths but mainly 760/800 wide and 400/450 deep).
4. bathtubs raised 500mm to create suitable working height and 90 mm storm water drain to sump. Can the three tubs run to the sump using one pipe? (sloping from 400mm to buried at sump).
5. what to use for the sump? Seems a waste to use professional fibreglass FT. I still have a spare bath.
6. open to suggestions on what to do to pump from FT back to GB. Most probably use low pressure 32mm pipe.

7. attached (my latest) sketch of layout.

You can certainly waste some time playing with this CAD stuff :cheers: :lol: :lol:


Attachments:
File comment: Not sure how this is going to display on the forum .... "1 test is worth 100 expert opinions" (c) chainsaw
tn_Sump Layout.jpg
tn_Sump Layout.jpg [ 20.89 KiB | Viewed 2464 times ]
Top
 Profile  
Reply with quote  
PostPosted: Jan 25th, '10, 15:09 
Xtreme Contributor
Xtreme Contributor

Joined: Dec 5th, '09, 18:07
Posts: 105
Gender: Male
Are you human?: most of the time
Location: Bushland Beach, TOWNSVILLE
Seems like we are limited to 800x600 landscape format (Why not also Portrait format? - it is the same number of pixels).

This had to be restricted to 600 wide ....


Attachments:
File comment: Let's see if this one is better ...
tn_Sump Layout.jpg
tn_Sump Layout.jpg [ 32.6 KiB | Viewed 2457 times ]
Top
 Profile  
Reply with quote  
PostPosted: Jan 25th, '10, 18:49 
Legend Member
Legend Member
User avatar

Joined: Oct 30th, '09, 08:53
Posts: 669
Gender: Male
Are you human?: yes
Location: Palmwoods Sunshine Coast QLD
My tuppence worth.


Attachments:
tn_Sump LayoutModified.JPG
tn_Sump LayoutModified.JPG [ 29.5 KiB | Viewed 2421 times ]
Top
 Profile  
Reply with quote  
PostPosted: Jan 25th, '10, 21:29 
Xtreme Contributor
Xtreme Contributor

Joined: Dec 5th, '09, 18:07
Posts: 105
Gender: Male
Are you human?: most of the time
Location: Bushland Beach, TOWNSVILLE
Thank you for your input Chainsaw

I've spent the last few hours reading up on SLO, CHIFT PIST, etc. Read a very interesting thread "Useful AP Diagrams". Tks to TCLynx and BF for a meaty thread. I learned a lot.

I want my GB to be waist high (900mm). My FT is 2400 x 1000 and with that much water in it I would prefer it standing on the ground. My dilemma has been trying to workout how to get the flow between FT, GB and ST. It looks like I'll need TWO pumps: a sump pump (with auto switch) feeding clean water back to the FT and (I already have) a rainwater tank pump - I'll need to check its flow rate - running on a timer to distribute to the GB.

I've modified my diagram to suit this idea. Open to ideas again .....


Attachments:
File comment: modified layout based on chainsaw's ideas .....
tn_Chainsaw Sump Layout.jpg
tn_Chainsaw Sump Layout.jpg [ 35.23 KiB | Viewed 2404 times ]
Top
 Profile  
Reply with quote  
Display posts from previous:  Sort by  
Post new topic Reply to topic  [ 88 posts ]  Go to page Previous  1, 2, 3, 4, 5, 6  Next

All times are UTC + 8 hours


You cannot post new topics in this forum
You cannot reply to topics in this forum
You cannot edit your posts in this forum
You cannot delete your posts in this forum
You cannot post attachments in this forum

Search for:
Jump to:  

Powered by phpBB® Forum Software © phpBB Group
Portal by phpBB3 Portal © phpBB Türkiye
[ Time : 0.155s | 15 Queries | GZIP : Off ]