⚠️ This forum has been restored as a read-only archive so the knowledge shared by the community over many years remains available. New registrations and posting are disabled.

All times are UTC + 8 hours




Post new topic Reply to topic  [ 687 posts ]  Go to page Previous  1, 2, 3, 4, 5 ... 46  Next
Author Message
PostPosted: Oct 16th, '09, 23:54 
Seriously, this cant be healthy.
Seriously, this cant be healthy.
User avatar

Joined: Dec 6th, '07, 01:13
Posts: 10709
Images: 0
Location: central FL
Gender: Female
Are you human?: YES at least mostly
Location: USA, Florida, Yalaha
I don't know if the trap will work but if it doesn't there are other members in South Africa that might be able to point you to a source of fish.

As to the bitumen, if it is safe for potable water and koi, then I would expect it to be relatively safe for Aquaponics. Just check to see if it is safe for drinking water and then make sure to follow the curing directions closely as for use with koi to make sure it is completely cured before adding water or whatever.

As to the barrels, I actually think the bright blue color is quite appealing but I suppose that is a matter of taste.

Lumber and liner can have drawbacks. I have done it but I wound up with termites causing a small leak in one of my liner beds (I made the mistake of using some really old landscape timbers as my short posts under the growbeds and they proved to be a perfect path for termites to get up to the growbed untreated lumber and then they chewed right into the liner perhaps not even noticing the difference before they got quite wet.) So if you do use wood and liner, make sure you don't provide a good path to untreated wood for termites. If you use treated wood, make sure it can't drip into your system anywhere as the treatment chemicals are not that healthy to eat.


Top
 Profile  
Reply with quote  
    Advertisement
 
PostPosted: Oct 18th, '09, 22:40 
Legend Member
Legend Member
User avatar

Joined: Oct 3rd, '09, 04:42
Posts: 882
Location: Cape Town South Africa
Gender: Male
Are you human?: Sadly
Location: South Africa Cape Town
Hi TCL. I am going to call the manufacturers on monday and find out about the superlaycold. I have sadly suffered a fairly major setback as the concrete slab left behind by the previous owner turns out to be only 20mm thick! :x This sucks as I will need to put down a decent slab before I can put anything down on it like my FT. I am considering moving the entire project to another place on the farm where the other family members will not need to deal with it (Kids playing in/with it) or see it and then I can use all maner of plastic tubs tanks and the like without having to worry about aesthetics. :cheers: I could also make the system bigger, and I could put up a small tunnel for winter time to keep the fish warm. Tilapia do survive the winter here but it does get cold! I am thinking to move the FT to new site and use the blue barrels for a start. Then I can start small and safe but have space for expansion later... I could then use the initial system for fry or as isolation tank or breeding tank... So many options!


Top
 Profile  
Reply with quote  
PostPosted: Oct 18th, '09, 23:03 
Seriously, this cant be healthy.
Seriously, this cant be healthy.
User avatar

Joined: Dec 6th, '07, 01:13
Posts: 10709
Images: 0
Location: central FL
Gender: Female
Are you human?: YES at least mostly
Location: USA, Florida, Yalaha
There ya go. When you choose your new location, you may want to make sure you can get electric and water to it fairly easily.
However, digging down a bit for sump tanks and fish tanks can be a good thing for temperature moderation which is a good point for choosing another location.

I'll let you know now that I hate blue barrels as fish tanks as they seem very difficult for me to see into. I also highly recommend looking through some of the later pages of Outbackozzie's thread to see how he wound up using blue barrels, cutting them around the middle rather than the long way. They don't need extra support when cut that way and so save on cost a little bit. If you cut them the long way, you need to build stands for them while cut around the middle they could just sit on blocks or right on the ground if there is an elevation difference between their bottoms and the tank they will drain into.

Just a note about flood and drain aquaponics and temperatures. You mention that tilapia will survive the winter where you are. However, flood and drain media beds will have a strong temperature effect on your water and will bring it closer to the air temperature than the water in a natural pond or damn are ever likely to get through the cooler parts of winter. If your cold air temps get below 10 C much over winter, you will probably need the poly tunnel or cold frame over the system to keep the water warm enough for the tilapia. Tilapia survive here in ponds, lakes, canals, rivers, and such. But in an above ground tank hooked to flood and drain media beds through the cold part of winter in an unprotected system here, the water could easily get down to 4-6 C which would likely kill the tilapia. I've been told that the Blue Tilapia may not recover well from water below 12 C.


Top
 Profile  
Reply with quote  
PostPosted: Oct 20th, '09, 03:42 
Legend Member
Legend Member
User avatar

Joined: Oct 3rd, '09, 04:42
Posts: 882
Location: Cape Town South Africa
Gender: Male
Are you human?: Sadly
Location: South Africa Cape Town
The superlaycold is non toxic and suitable for potable water :cheers: . I am seriously thinking of making the entire system with the exception of the sump from brickwork and sealing it up with superlaycold. I have some experience with building a brick reservoir having built the 50 000L irrigation reservoir on the farm. I recon a small 5000 litre reservoir built from brick would be fairly cheap and quick to do. I will do some costings. having looked at other peoples systems, there seems to be a hell of a lot of valves and piping involved in having multiple blue barrel or other type growbeds. Is there something wrong with having one FT and a large long single rectangular growbed? Say a 3000 L tank and a 300X1000X10000mm growbed and then have a 1500L plastic septic tank sump in the ground. Would the fact that it would take a long time to flood and drain such a large growbed be problematic? Another drawback I suppose is that some plants prefer different conditions to others. Perhaps the growbed should be devided up into three or four partitions. I was scoping out the area behind my workshop for a suitable location. It has water electricity, a large wall area which could help with the greenhouse construction but not sunlight as it is kind of east facing. It would also be close to my 200l compressor so I would have compressed air online for emergencies. I will snap some pics and post them tomorrow.


Top
 Profile  
Reply with quote  
PostPosted: Oct 20th, '09, 06:33 
Seriously, this cant be healthy.
Seriously, this cant be healthy.
User avatar

Joined: Dec 6th, '07, 01:13
Posts: 10709
Images: 0
Location: central FL
Gender: Female
Are you human?: YES at least mostly
Location: USA, Florida, Yalaha
Beware using a regular air compressor for fish, it would need an oil trap to keep from contaminating the system water.

There are a few of us with huge grow beds out there. You are right that blue barrels will cost some in plumbing and supports unless you get the barrels for fee or near to it, they are not the cheapest way to go. When dealing with super large beds, I've noticed there can be some issues with solids building up near a single inlet, as it requires somewhat more frequent poking with a stick than the smaller beds. Anyway, my "monster" bed holds around 600 gallons of gravel and has a sump pump installed in one end to drain it since it is sitting on the ground and couldn't drain by gravity over to my tank. (Idea for gravel filled sump perhaps.) Dan over in Texas has a huge grow bed as well and he developed a valve to stay shut while the pump is on and then open when the pump turns off to let the bed drain. I don't think I would leave a super large grow bed to the function of an autosiphon though auto siphons seem to work ok for me on beds up to about 200 gallons. A FLOUT might also be appropriate to an extra large grow bed if you feel like searching for something like that. Timer and standpipe seem to work for whatever provided your pump is powerful and the timer can handle it.

You might even be able to do the sump in ground with masonry I suppose though I don't know that much about doing that myself.


Top
 Profile  
Reply with quote  
PostPosted: Oct 20th, '09, 07:41 
Moderator
Moderator
User avatar

Joined: Apr 6th, '09, 08:13
Posts: 3284
Location: Perth, hills region
Gender: Male
Blog: View Blog (1)
Are you human?: Not in the morning !
Location: Western Australia
Brian - correct me if I'm reading your details wrong (wouldn't be the first time :oops: ) but haven't you made you growbed 3,000 litres ? That would then essentially leave no significant amount of water in your GB before much drainage occurs. Wouldn't be very good for the fish !


Top
 Profile  
Reply with quote  
PostPosted: Oct 20th, '09, 08:30 
Seriously, this cant be healthy.
Seriously, this cant be healthy.
User avatar

Joined: Dec 6th, '07, 01:13
Posts: 10709
Images: 0
Location: central FL
Gender: Female
Are you human?: YES at least mostly
Location: USA, Florida, Yalaha
chillidude wrote:
Brian - correct me if I'm reading your details wrong (wouldn't be the first time :oops: ) but haven't you made you growbed 3,000 litres ? That would then essentially leave no significant amount of water in your GB before much drainage occurs. Wouldn't be very good for the fish !


Chill,
I think he was planning on making the growbed equal to the fish tank. and having a 1500 liter sump. He is running close to the line there on sump size since it is only 50% of the grow bed. However, if he did do a 3000 liter fish tank and a 3000 liter grow bed, that would the a 1:1 system and that is fine even for a simple system since a grow bed filled with media only requires about 40% of the water to flood it.

Now personally I would probably advise to have a 3000 liter fish tank that drains into a 3000 liter grow bed that can drain into another 3000 liter media filled sump bed and that would give a nice 2:1 ratio all in three containers but I haven't actually tried such a system to see if it would work so well so the standard 2:1 grow bed to fish tank CHIFT PIST set up would be
3000 liter fish tank draining into 6000 liters worth of grow beds that then drain into a 3000 + liter sump tank.

anyway, have fun with it all.


Top
 Profile  
Reply with quote  
PostPosted: Oct 27th, '09, 04:15 
Legend Member
Legend Member
User avatar

Joined: Oct 3rd, '09, 04:42
Posts: 882
Location: Cape Town South Africa
Gender: Male
Are you human?: Sadly
Location: South Africa Cape Town
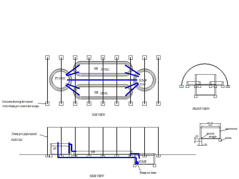
chilli and TCL. I am slowly getting a better idea about this stuff thanks to you guys and this great forum :) . I did a lot of thinking and some designing based on this new found knowledge, but I am still a little uncertain as to some things. Here is my current plan: Round brick tank +-3000L flowing via SLO drains to two +-3000L brick grow beds through stand pipes into a +-3000L round brick sump Tank sunk into the ground. The pump would be on a timer in the sump and would be a swimming pool pump or similar powerfull pump capable of transferring enough water to the tank to flood the beds fast enough. I would aerate using my compressor through a oil removing filter. All this would be under a greenhouse tunnel 5m by 12m made from hoops of 32mm PVC piping set in 40mm PVC sleeves cast in 400mm X 400mm concrete footings set in the sand. I could then do some NFT in the space above using a small water feature pump for lettuce growing. By the way the gutters from the first attempt are now being converted to a hydroponic system for the meantime. I figure I need to do something with them. Here is a pic of my new plan. Would love to hear comments and suggestions. I would like to do this brick thing as it would be a good demo on how easy and cheap it is to build a brick tank so that other users may also adopt this method. TCL mentioned filling the sump with gravel. This would then provide extra growbed space but can you put extra fish in there? Also would like to know how much water needs to be pumped and how fast for this size of system.


Attachments:
Big system 2.jpg
Big system 2.jpg [ 59.91 KiB | Viewed 6116 times ]
Top
 Profile  
Reply with quote  
PostPosted: Oct 28th, '09, 02:04 
Legend Member
Legend Member
User avatar

Joined: Oct 3rd, '09, 04:42
Posts: 882
Location: Cape Town South Africa
Gender: Male
Are you human?: Sadly
Location: South Africa Cape Town
I figure I will build the Fish tank while I wait for feedback. Like all things magical we start with a wand... in this case a pole in the ground. This is set up plumb and concteted in.


Attachments:
261020091120.jpg
261020091120.jpg [ 21.2 KiB | Viewed 6077 times ]
Top
 Profile  
Reply with quote  
PostPosted: Oct 28th, '09, 02:07 
Legend Member
Legend Member
User avatar

Joined: Oct 3rd, '09, 04:42
Posts: 882
Location: Cape Town South Africa
Gender: Male
Are you human?: Sadly
Location: South Africa Cape Town
Made some essential tools. One for marking out the foundation which is 300mm by 220mm deep. The other will be for laying the bricks.


Attachments:
261020091122.jpg
261020091122.jpg [ 31.35 KiB | Viewed 6076 times ]
Top
 Profile  
Reply with quote  
PostPosted: Oct 28th, '09, 02:11 
Legend Member
Legend Member
User avatar

Joined: Oct 3rd, '09, 04:42
Posts: 882
Location: Cape Town South Africa
Gender: Male
Are you human?: Sadly
Location: South Africa Cape Town
Foundation dug in and then datum sticks are hammered in and then using a water level level points are marked off on the sticks. The concrete then goes in and is levelled using the marks


Attachments:
271020091134.jpg
271020091134.jpg [ 34.16 KiB | Viewed 6080 times ]
Top
 Profile  
Reply with quote  
PostPosted: Oct 28th, '09, 02:37 
Seriously, this cant be healthy.
Seriously, this cant be healthy.
User avatar

Joined: Dec 6th, '07, 01:13
Posts: 10709
Images: 0
Location: central FL
Gender: Female
Are you human?: YES at least mostly
Location: USA, Florida, Yalaha
If you were to do a Gravel filled Sump grow bed, then no you wouldn't then be putting fish in the sump tank. Keep in mind that a sump tank level will fluctuate pretty widely and might no be appropriate for many fish. Also if you are keeping lots of fish in a sump tank, then it is no longer really a clean water sump and pumping water from it for things like NFT or DWC might again require extra filtration.

Also, when adding extra fish to a sump tank, it is likely easy to find one's self under filtered. I know many people do it but one should keep in mind that any tank containing fish needs an appropriate amount of filtration, aeration and circulation.

As to pumps. Pool pumps are often not the most energy efficient choice so do some research about what is available that can move 3000 liters in the desired amount of time at the needed head.


Top
 Profile  
Reply with quote  
PostPosted: Oct 28th, '09, 03:16 
Legend Member
Legend Member
User avatar

Joined: Oct 3rd, '09, 04:42
Posts: 882
Location: Cape Town South Africa
Gender: Male
Are you human?: Sadly
Location: South Africa Cape Town
After setting the concrete in and levelling very well, the datum sticks are removed and as the concrete sets up it must be trowelled to a very smooth finish, and then covered with boards to prevent dogs/kids from messing up the surface. This is very important as after the footing has set it gets mopped with bitumen apon which the walls get built. this creates a sliding surface to allow the walls to move on the footing with thermal expansion and contraction.


Attachments:
271020091137.jpg
271020091137.jpg [ 32.62 KiB | Viewed 6069 times ]
Top
 Profile  
Reply with quote  
PostPosted: Oct 28th, '09, 04:27 
Legend Member
Legend Member
User avatar

Joined: Oct 3rd, '09, 04:42
Posts: 882
Location: Cape Town South Africa
Gender: Male
Are you human?: Sadly
Location: South Africa Cape Town
TCL. I thought you might point out that you can't put fish and gravel in the sump at the same time :lol: What is the advantage of having gravel in the sump? Is it just more grow space. Is it just basically a very deep growbed? You would then need to drain the sump with a pipe from the sump as you cannot use a submersible pump? I was planning on pumping water from the FT for the NFT not from the sump. people seem to keep "jabbies" in their sumps, but I don't think we have a South African alternative.... crabs? What do you think about the PVC pipe tunnel idea. It gets pretty windy here. Otherwise is it a feasable plan?


Top
 Profile  
Reply with quote  
PostPosted: Oct 28th, '09, 05:21 
Seriously, this cant be healthy.
Seriously, this cant be healthy.
User avatar

Joined: Dec 6th, '07, 01:13
Posts: 10709
Images: 0
Location: central FL
Gender: Female
Are you human?: YES at least mostly
Location: USA, Florida, Yalaha
Well the primary benefit to having a gravel filled sump bed is to have lots more filtration and plant growing space without needing an extra "sump tank". How I would manage a pump down in a bed/tank filled with gravel would be like an extra large stand pipe gravel guard. It would depend on how big the pump is and how deep the tank is. I used a plastic basket to place a float operated pump in my monster grow bed but it isn't that deep. Perhaps for a really big sump tank, one might cut lots of holes/slits in a blue barrel and put in down and place the pump in it and surround with gravel.


Top
 Profile  
Reply with quote  
Display posts from previous:  Sort by  
Post new topic Reply to topic  [ 687 posts ]  Go to page Previous  1, 2, 3, 4, 5 ... 46  Next

All times are UTC + 8 hours


You cannot post new topics in this forum
You cannot reply to topics in this forum
You cannot edit your posts in this forum
You cannot delete your posts in this forum
You cannot post attachments in this forum

Search for:
Jump to:  
cron

Powered by phpBB® Forum Software © phpBB Group
Portal by phpBB3 Portal © phpBB Türkiye
[ Time : 0.088s | 15 Queries | GZIP : Off ]