⚠️ This forum has been restored as a read-only archive so the knowledge shared by the community over many years remains available. New registrations and posting are disabled.

All times are UTC + 8 hours




Post new topic Reply to topic  [ 37 posts ]  Go to page 1, 2, 3  Next
Author Message
 Post subject: thabo's toys
PostPosted: Apr 15th, '12, 06:30 
Valued Contributor
Valued Contributor
User avatar

Joined: Apr 2nd, '12, 12:42
Posts: 54
Gender: Male
Are you human?: yes
Location: israel
hi

i have posted some photos of my testing and the set-up I'm building in the introduction forum here - http://www.backyardaquaponics.com/forum/viewtopic.php?f=45&t=12252&p=323217#p323217

anywya, have had to take a forced break from building my system due to pressure of the Passover holiday this last week and my desire to remain married...

hope to be at it again full speed from tomorrow tho.

i have a couple of questions, hopefully someone can answer them

1) i put some moss from an existing koi pond into my tank to jumpstart the system.
i didnt check prior to setting up, but below the water line in my tank (its running with just water and moss) feels scaly and rough. is this normal? does it indicate a problem?

2) i will have a 1" gap at the base of my bell siphon for the water to get in and obviously i wil then be left with at least 1" of water at the bottom of the grow bed that will never be sucked out.
I intend to put a 4" pipe with lots of holes in it around the bell so that stones are kept out of the siphon.
if i drill the holes anything above 1" from the bottom of the 4" pipe this will mean that there will always be water in the bottom that will never be pumped out. i assume that water will end up being full of junk and dead worms etc.
do i want to suck that water back into the fish tank (can do that by drilling holes right at the base of the 4" pipe, or is it better to keep that junk in the base of the grow bed and just let it accumulate.

i assume that if i let it accumulate that at some point i will have to dig it out and clean out the grow beds.

any other advice that you can give me now will also be much appreciated

cheers

thabo


Top
 Profile  
Reply with quote  
    Advertisement
 
 Post subject: Re: thabo's toys
PostPosted: Apr 15th, '12, 14:23 
Site Admin
Site Admin
User avatar

Joined: Mar 12th, '06, 07:56
Posts: 17803
Images: 4
Location: Perth
Gender: Male
Blog: View Blog (1)
Answers

1) Dunno, hard to tell from your description perhaps a photo?

2) Just do it the way everyone does, drill holes right to the bottom of your gravel surround, and drill loads of holes at least in the bottom 6 inches. I'm not sure why you wouldn't drill them right down to the bottom.. :dontknow:


Top
 Profile Personal album  
Reply with quote  
 Post subject: Re: thabo's toys
PostPosted: Apr 22nd, '12, 20:20 
Valued Contributor
Valued Contributor
User avatar

Joined: Apr 2nd, '12, 12:42
Posts: 54
Gender: Male
Are you human?: yes
Location: israel
Major update today!

spent friday re-enforcing the stand and finishing up plumbing the system

here are some pics

Image

here you can see the 25mm pipe from the pump coming out of the tank and being reduced to 20mm before being split into 2.
main line goes up to the grow beds and secondary line goes back to the tank. this line has a tap on it which will probably be in the off position most of the time. if i find that the flow rate in the main pipe to the grow beds is too high i can control it with this tap... any excess capacity can be fed directly back in to the tank.

I may have to drill a hole through the pipe and lock it in place inside the tank to prevent the kids pulling it out

view from the top...

Image

you can see the 4 grow beds and the distrobution system.
each inlet has a tap so i can control speed individually.

currently there is no stone in the tanks yet as i am still in the testing stage.
I have found that one of the tanks fills faster than the other 3 (assumably the stand is not 100% level and the inlet fo that tank is a bit lower than the others so it gets more water than the others.
i will either have to play with the heigh to the inlet at that tank or close the tap slightly.

the tanks empty contain about 95 liters of water before they start draining. it takes about 21 minutes to fill the grow beds which means that i am pumping about 1000 liters per hour.

I estimate that once i put in the stone (should be arriving today) I will have about 100 liters stone in each one (weighing 160kg) and about 40 liters of water (total weight 200kg per barrel)
that means that it should take about 8 mins to fill each tank giving me about 7 and a half cycles per hour per bed

here is a pic of the water flowing in near the siphon

Image

you can see the 4" filter and the bell over the top of the stand pipe.

here is the stand pipe

Image

at the very base of the stand pipe i drilled a 3mm hole so that in the event that the pump stops working (failure, power cut, whatever) the water will slowly drain back into the fish tank.

Image

in the corner of the tank you can see the water trickling back in.

once the siphon initiates the flow is considerably higher as you can see here

Image

i have not yet tanken any accurate flow reate measurements but the tanks drain within about 2 min (which is an average of about 45 liters per minute (0.75 l/s) compared to a constant in-flow rate of about 4.5 liters per minute (0.075 l/s).

there is one bug in the system - the siphon does not always cut out when level drops all the way down.

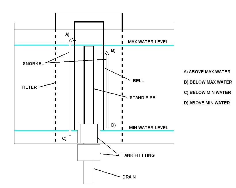
I now need advise as to how to set up the snorkel please

below is a scematic with a couple of options:
do i locate the top of the snorkel tube above or below the max water line?

Image

i assume that the bottom should not be below the min water line (that just makes no sense) but please someone advise me on this

thanks

I hope to be able to add the fish and seedlings soon...

...then the fun begins!


Top
 Profile  
Reply with quote  
 Post subject: Re: thabo's toys
PostPosted: Apr 23rd, '12, 10:14 
Valued Contributor
Valued Contributor
User avatar

Joined: Apr 2nd, '12, 12:42
Posts: 54
Gender: Male
Are you human?: yes
Location: israel
oh, and a 'nutha question...

when adding earth worms to the grow beds.... how many should one add per cubic meter of media?


Top
 Profile  
Reply with quote  
 Post subject: Re: thabo's toys
PostPosted: Apr 23rd, '12, 12:21 
Xtreme Contributor
Xtreme Contributor

Joined: Sep 29th, '10, 16:44
Posts: 211
Gender: Male
Are you human?: yes
Location: Warnbro , Western Austarlia
I just grabbed a handfull out of a freinds worm farm and threw them in , they bred like , well worms my gb is now crawling with them .


Top
 Profile  
Reply with quote  
 Post subject: Re: thabo's toys
PostPosted: Apr 29th, '12, 15:11 
Valued Contributor
Valued Contributor
User avatar

Joined: Apr 2nd, '12, 12:42
Posts: 54
Gender: Male
Are you human?: yes
Location: israel
had typed up an entire update but the internet ate it :(

got the system up and running with stone in the 4 grow beds, but one of the siphons is choking and wont stop draining.
I spent a good few hours finishing up including digging out that siphon that was getting choked and managed to sort it out... or so i thought.
when i tried to post last night it was still working perfectly, but when i checked this morning it was choked again.
will have to figure out what's going wrong, and how big the hammer I need to sort out the problem needs to be

put a bunch of goldfish into the tank to help it start cycling properly.
cheap enough not to worry about if they dont make it.

on friday i transplanted my seeds from the potting soil.
only the cucumbers had germinated, but until i can get some seedlings (nothing in the nurseries yet) I hope those take

hope the move didn't kill them.

have been testing the water quality every day and found something a bit strange...

although amonia and nitrite levels aren't zero, they (especially amonia) are a lot lower than i expected them to be

Image

strange thing is that nitrates are higher than expected... i thought this would take a few weeks for them to start climbing.

anyone who has/had an aquarium who can tell me what's going on and if this is normal or not?

other than that, all other water qualities (PH, Cl, hardness) are OK or improving.

oh. and the water is awfully cloudy, but i think its strarting to get better.
will have to keep an eye on that too

anything i'm doing wrong? anything i should change?


Top
 Profile  
Reply with quote  
 Post subject: Re: thabo's toys
PostPosted: Apr 30th, '12, 15:42 
Valued Contributor
Valued Contributor
User avatar

Joined: Apr 2nd, '12, 12:42
Posts: 54
Gender: Male
Are you human?: yes
Location: israel
nitrates still climbing - about 20 - 25 now
amonia and nitrites still very low

any ideas why?


Top
 Profile  
Reply with quote  
 Post subject: Re: thabo's toys
PostPosted: Apr 30th, '12, 15:58 
Site Admin
Site Admin
User avatar

Joined: Mar 12th, '06, 07:56
Posts: 17803
Images: 4
Location: Perth
Gender: Male
Blog: View Blog (1)
Cycling perhaps?


Top
 Profile Personal album  
Reply with quote  
 Post subject: Re: thabo's toys
PostPosted: May 1st, '12, 04:51 
Valued Contributor
Valued Contributor
User avatar

Joined: Apr 2nd, '12, 12:42
Posts: 54
Gender: Male
Are you human?: yes
Location: israel
earthbound wrote:
Cycling perhaps?


yes, but...

i would have expected amonia and nitrites to climb above zero

Iv had the water going round in endlesslcircles for about 4 weeks now and had pond muck hanging in the water for the first 3 of them.
put the stone in less than a week ago and a bunch of goldfish even more recently

cant possibly have established a sufficiently large enough colony of microscopic whatzits in that time to cope with the poo of 25 fish... can it?


Top
 Profile  
Reply with quote  
 Post subject: Re: thabo's toys
PostPosted: May 2nd, '12, 13:01 
Valued Contributor
Valued Contributor
User avatar

Joined: Apr 2nd, '12, 12:42
Posts: 54
Gender: Male
Are you human?: yes
Location: israel
how's this for a "thinking out of the box" reason for what might be going on...

it's quite possible that mining is done here with nitrate based explosives before the stone is crushed down to size.
there could be enough residue from the explosives that didn't get rinsed out properly during the wash... i still ended up with lots of mud in the system even though i thought i'd done a good job

any thoughts?


Top
 Profile  
Reply with quote  
 Post subject: Re: thabo's toys
PostPosted: May 4th, '12, 01:12 
Valued Contributor
Valued Contributor
User avatar

Joined: Apr 2nd, '12, 12:42
Posts: 54
Gender: Male
Are you human?: yes
Location: israel
i think we have the reason for the high nitrate levels.

i had some stone left over so i soaked it in fresh water for a day and tested the water now...
nitrates in that batch are sky high!

it's quite possible that mining was done using nitrate based explosives and there is residue on the stone which didn't get washed off properly when i rinsed the stone.

anyway, hopefully the now with plants actually starting to grow, they might eat up some of those excess nitrates

LOOK! CUCUMBERS!

Image


Top
 Profile  
Reply with quote  
 Post subject: Re: thabo's toys
PostPosted: May 6th, '12, 12:36 
Valued Contributor
Valued Contributor
User avatar

Joined: Apr 2nd, '12, 12:42
Posts: 54
Gender: Male
Are you human?: yes
Location: israel
more cucumber and tomato plants starting to sprout. still nothing in the pepper and eggplant departments

here is a pic of the goldfish at feeding time

Image

even if i just stick my hand in the water they now come and have a look... all a bit pavlovian

a bit worried about the color of my water.
its been a week + and the water's not getting much clearer.
hanging from that string is a thermometer and the red bulb is only 30cm below the surface - i still cant see it

any idea what I might be doing wrong?

I plan to go get some thing to cover the sides of the tank with during the week... just to keep the sun of the water and reduce algea growth


Top
 Profile  
Reply with quote  
 Post subject: Re: thabo's toys
PostPosted: May 9th, '12, 11:17 
Valued Contributor
Valued Contributor
User avatar

Joined: Apr 2nd, '12, 12:42
Posts: 54
Gender: Male
Are you human?: yes
Location: israel
Morning all

have now had the goldfish in for 2 weeks and the tomatoes and cucumbers are taking off nicely
peppers and eggplant have gone no where from seeds so i will plant seedlings at the week-end

urgent question!

I would like to add my fingerlings now.
too early?
good idea?

the waters gone a bit greener than before... I'm going to put up some shade for the tank over the week end to keep the sun off the water.

please guys. I'd appreciate an answer from someone.
I need to place the order today if i want to get delivery by friday


Top
 Profile  
Reply with quote  
 Post subject: Re: thabo's toys
PostPosted: May 10th, '12, 06:15 
Bordering on Legend
Bordering on Legend

Joined: Jul 29th, '11, 01:49
Posts: 348
Gender: Male
Are you human?: YES
Location: Salinas, California USA
Many people start w/ fingerlings. At least you have some head start cycling... let's see 3 weeks. You should be a good way to being cycled for your current load. Just don't over do it you'll be find.


Top
 Profile  
Reply with quote  
 Post subject: Re: thabo's toys
PostPosted: May 10th, '12, 07:01 
Moderator
Moderator
User avatar

Joined: May 6th, '11, 12:06
Posts: 12206
Gender: Male
Location: Northern NSW
thabo wrote:
it's quite possible that mining was done using nitrate based explosives and there is residue on the stone which didn't get washed off properly when i rinsed the stone.

Explosives used in mining contains ammonium nitrate along with a bunch of other stuff like accelerants, aluminiums, nitroglycerin and some organic matter.


Top
 Profile  
Reply with quote  
Display posts from previous:  Sort by  
Post new topic Reply to topic  [ 37 posts ]  Go to page 1, 2, 3  Next

All times are UTC + 8 hours


You cannot post new topics in this forum
You cannot reply to topics in this forum
You cannot edit your posts in this forum
You cannot delete your posts in this forum
You cannot post attachments in this forum

Search for:
Jump to:  

Powered by phpBB® Forum Software © phpBB Group
Portal by phpBB3 Portal © phpBB Türkiye
[ Time : 0.128s | 13 Queries | GZIP : Off ]