⚠️ This forum has been restored as a read-only archive so the knowledge shared by the community over many years remains available. New registrations and posting are disabled.

All times are UTC + 8 hours




Post new topic Reply to topic  [ 26 posts ]  Go to page Previous  1, 2
Author Message
PostPosted: May 28th, '15, 13:43 
Newbie
Newbie

Joined: May 26th, '15, 09:28
Posts: 25
Gender: Male
Are you human?: yes
Location: NSW, Australia
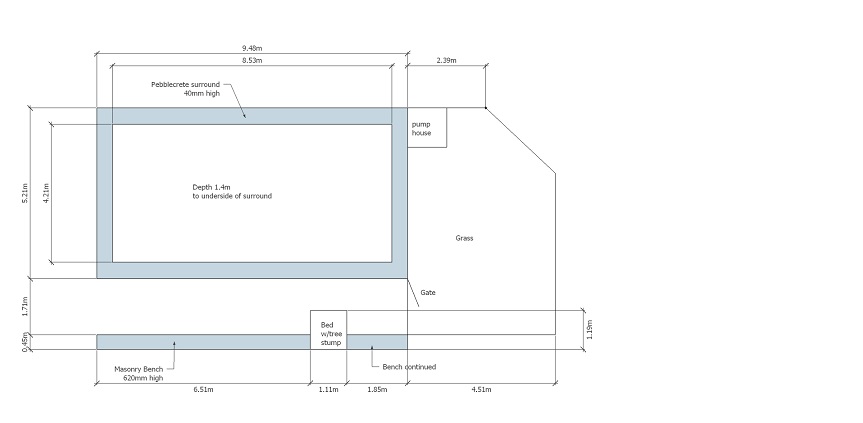
Here is a basic layout of the area i have to work with, sketchup was tricky to get exact measurements with as i've only just downloaded it, round any measurements to nearest 5cm


Attachments:
Basic plan of pool area resize.jpg
Basic plan of pool area resize.jpg [ 29.88 KiB | Viewed 5060 times ]
Top
 Profile  
Reply with quote  
    Advertisement
 
PostPosted: May 28th, '15, 14:05 
Newbie
Newbie

Joined: May 26th, '15, 09:28
Posts: 25
Gender: Male
Are you human?: yes
Location: NSW, Australia
I've found a few pumps available in the 30000-55000 lph range, they are high flow pumps and the 55000 lph model (Jebao JKP55000) should be able to handle the head height comfortably, i'll have to include an overflow return pipe where it enters the grow bed system in case the flow is too high for the system to deal with. From what i can tell the pump has a 110mm fitting does that seem right? It's looking like my plumbing will be quite interesting.

The existing garden bed along the masonry bench has an old rotted out tree stump in it, i can demolish the brick surround easily enough and my measurements suggest i could fit an IBC into the space quite neatly.

the bench isnt as wide as i had guessed, would i be able to fit half blue barrels on there and run a pipe along the brickwork above to feed them, with a drain pipe on the edge of the bench to return the water to the pool?


Top
 Profile  
Reply with quote  
PostPosted: May 28th, '15, 14:34 
Bordering on Legend
Bordering on Legend
User avatar

Joined: Feb 2nd, '15, 17:15
Posts: 278
Gender: Male
Are you human?: yes
Location: Geelong Vic, AU
make sure you can control the water flow to EVERYWHERE with gate valves or similar... water goes up and down so you are not restricted with where you place the GB's. might be time to include the project designer (wife) to approve your setup with the half barrels and IBC.

here's an easy design pool setup...


Attachments:
POOL SETUP.jpg
POOL SETUP.jpg [ 54.73 KiB | Viewed 5051 times ]


Last edited by mudeye on May 28th, '15, 15:04, edited 1 time in total.
Top
 Profile  
Reply with quote  
PostPosted: May 28th, '15, 14:45 
A posting God
A posting God

Joined: Nov 10th, '12, 09:27
Posts: 2667
Gender: Male
Are you human?: maybe
Location: Vic
30 - 55 KL/hr is a hell of a lot of water to move.

once you have a pool, you can basically ignore the turn water over every hour rule.

as mentioned earlier, stocking high density in a pool is always going to be hard, you will hit other limits before you run out of DO in your pool.

my friend who has his pool as FT uses a laguna 4280 - 16kl/hr pump..... it is enough.


Top
 Profile  
Reply with quote  
PostPosted: May 28th, '15, 19:32 
Site Admin
Site Admin
User avatar

Joined: Mar 12th, '06, 07:56
Posts: 17803
Images: 4
Location: Perth
Gender: Male
Blog: View Blog (1)
+1 Yavi...


Top
 Profile Personal album  
Reply with quote  
PostPosted: May 28th, '15, 20:27 
Almost divorced
Almost divorced
User avatar

Joined: Apr 1st, '13, 21:21
Posts: 1353
Gender: Male
Are you human?: yes
Location: Balcatta WA
one problem I had with my system was high nutrient levels in the water + sunlight = Algae

the solution was covering the water in the FT (pool)

I use a 12000Lph pump for mine but its pumping 2 to 2.5m head so its probably doing 7 or 8 kl per hour.


Top
 Profile  
Reply with quote  
PostPosted: May 28th, '15, 21:05 
In need of a life
In need of a life

Joined: Jul 2nd, '14, 14:59
Posts: 1848
Images: 0
Location: Peakhurst - Sydney
Gender: Male
Are you human?: Thought I WAS
Location: Sydney
Slowboat wrote:
the solution was covering the water in the FT (pool).


Plus one... uncovered there will be a disaster..
The nutrients will be all consumed IN the pool, by algae..

I can't see how it is practical to heavily stock a whole pool, and have sufficient grow bed capacity to simply use all nutrients .. and provide the nitrification bacteria ..

Use the pool as a covered space and you maintain "control"
..
.


Top
 Profile  
Reply with quote  
PostPosted: May 29th, '15, 14:31 
A posting God
A posting God

Joined: Nov 10th, '12, 09:27
Posts: 2667
Gender: Male
Are you human?: maybe
Location: Vic
Slowboat wrote:
one problem I had with my system was high nutrient levels in the water + sunlight = Algae

the solution was covering the water in the FT (pool)

I use a 12000Lph pump for mine but its pumping 2 to 2.5m head so its probably doing 7 or 8 kl per hour.



My friend also had this problem.
I told him... dude, dont worry about the colour of the water..... it will clear up once your rocks start working properly.

he proceeded to spend almost a grand building a roof over most of the pool..... didnt help.
he then bought a 1500w UVC, which did the job..... until it was turned off.

after a while the rocks started working and it all cleared up perfectly.....

rule #1.... be patient.

algae will come and go, once your system (filtration) is healthy and stabilised well, you wont get algal blooms, even if you feed heavier. Stringy algae, that is another issue all together.


Top
 Profile  
Reply with quote  
PostPosted: May 29th, '15, 16:38 
Newbie
Newbie

Joined: May 26th, '15, 09:28
Posts: 25
Gender: Male
Are you human?: yes
Location: NSW, Australia
I'm not concerned about algae as considering the water volume I won't even come close to having a heavy bio load, while I will be growing both veges and landscaping plants in the water, if it looks like nutrient will be an issue I'll add a bio filter but would rather hold off until I know I need it


Top
 Profile  
Reply with quote  
PostPosted: May 29th, '15, 16:46 
A posting God
A posting God

Joined: Nov 10th, '12, 09:27
Posts: 2667
Gender: Male
Are you human?: maybe
Location: Vic
dude with the pool didnt run a filter for a couple of months i think, got away with 180 SP fingerlings in there no problem.

however the quicker the filter goes in the better, especially if you dont like green water.


Top
 Profile  
Reply with quote  
PostPosted: Sep 21st, '18, 01:29 
Bordering on Legend
Bordering on Legend
User avatar

Joined: Jan 18th, '11, 08:29
Posts: 481
Images: 0
Location: Western NC
Gender: Male
Are you human?: Unknown Cyborg
Location: North Carolina
This is a 3 year old thread, it looks like he followed up in 2 other threads though:

viewtopic.php?f=1&t=26796
viewtopic.php?f=1&t=29381


Top
 Profile  
Reply with quote  
Display posts from previous:  Sort by  
Post new topic Reply to topic  [ 26 posts ]  Go to page Previous  1, 2

All times are UTC + 8 hours


You cannot post new topics in this forum
You cannot reply to topics in this forum
You cannot edit your posts in this forum
You cannot delete your posts in this forum
You cannot post attachments in this forum

Search for:
Jump to:  
cron

Powered by phpBB® Forum Software © phpBB Group
Portal by phpBB3 Portal © phpBB Türkiye
[ Time : 0.087s | 15 Queries | GZIP : Off ]